EXCLUSIVITE - VALLEE DES GAVES - Maison de type 4 + combles
Argelès-Gazost 65400
0
Honoraires à la charge de l'acquéreur (Prix hors honoraires : 225000 euros).
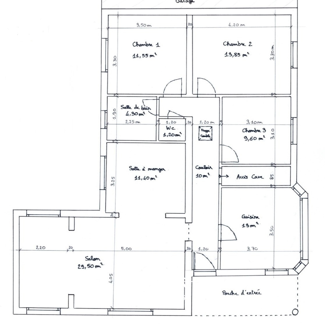
EXCLUSIVITE - VALLEE DES GAVES - Maison de type 4 + combles + garage et terrain de 850m2. A mi distance entre ARGELES-GAZOST et PIERREFITTE-NESTALAS, au fond d'une impasse, maison des années 1970, d'une surface d'environ 105m2 + combles + grand garage carrelé. De plain-pied, elle dispose d'une entrée, séjour/salle à manger avec cheminée, cuisine séparée (accès garage), 3 chambres et salle de bains avec WC. A rafraîchir, mais en très bon état, les menuiseries sont en simple vitrage bois, chauffage central et production de l'eau chaude sanitaire par cuve de gaz extérieure. Grand garage carrelé avec buanderie attenant en partie SUD. Construite sur vide sanitaire, possibilité d'aménager les combles en couchages d'appoint. Vente meublée possible. Logement à consommation énergétique excessive : DPE classé en E. Montant estimé des dépenses annuelles d'énergie pour un usage standard : Entre 3340 EUR et 4570 EUR par an (Prix moyens des énergies indexés sur les années 2021, 2022 et 2023, abonnement compris). Les informations sur les risques auxquels ce bien est exposé sont disponibles sur le site Géorisques : www.georisques.gouv.fr
105 m²
2 262 €
27 m²
850 m²
4
3
1
1
5.56 %
1967
Sud
Est
1
Consommations énergétiques
Logement économe
250
Logement énergivore (kWhEP/m2/an)
Émissions de gaz à effet de serre
Faible émission de GES
62
Forte émission de GES(kgeqCO2/m2/an)
Contact EPAGNOUX
Contacter gratuitement à l'aide du formulaire ci-dessous.