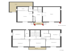
L'agence STG Immobilier, spécialiste de l'immobilier en Corse est ravie de vous proposer à la vente en exclusivité cette maison de type 6 de 153 m2 habitables à rénover avec un casellu d'environ 30 m2 implantée sur un terrain de 582 m2. Située à 40 minutes d'Ajaccio, au coeur du charmant village de Bastelica, cette maison à rénover offre un fort potentiel pour créer un véritable cocon familial ou un pied-à-terre en montagne. Sur 3 niveaux, elle se compose d'une grande entrée, d'un dégagement, d'un wc séparé, d'un salon, d'une cuisine séparée avec cheminée et d'une buanderie. Au 1er étage, un couloir dessert 5 chambres, une salle de bain et un wc. Au 2ème étage, des combles aménageables de près de 70 m2. À l'extérieur une cave d'environ 15 m2 et un casellu d'environ 30 m2. Une parcelle attenante et constructible de 180 m2 complète ce bien. Les atouts du village : École primaire, car scolaire pour le collège, bureau de poste, médecin, épicerie et commerces, station de ski à seulement 20 minutes (Val d'Ese)... Idéale pour les amoureux de la nature, du calme et de l'authenticité, cette maison attend un projet de rénovation pour révéler tout son caractère. Une belle opportunité pour investir dans un village dynamique et recherché au coeur de la montagne corse. Pour plus d'informations ou pour organiser une visite, n'hésitez pas à contacter Angela NUNZI // 06 37 42 08 12 // angela@stgimmobilier.com Les informations sur les risques auxquels ce bien est exposé sont disponibles sur le site Géorisques www.georisques.gouv.fr
153 m²
1 209 €
24 m²
582 m²
6
5
1
2
1960
Ouest
Consommations énergétiques
Logement économe
395
Logement énergivore (kWhEP/m2/an)
Émissions de gaz à effet de serre
Faible émission de GES
119
Forte émission de GES(kgeqCO2/m2/an)
Contact NUNZI Angela
Contacter gratuitement à l'aide du formulaire ci-dessous.