EXCLUSIVITE ! DERNIÈRE OPPORTUNITÉ Terrain prêt à bâtir au
Digne-les-Bains 04000
0
Honoraires à la charge du vendeur.
Christelle ESPOSITO vous propose en exclusivité la dernière opportunité au sein du lotissement Le Clos du Cousson : un Beau terrain entièrement viabilisé de 505 m2, idéalement situé dans un environnement résidentiel calme et privilégié à Digne-les-Bains, préfecture des Alpes-de-Haute-Provence et ville thermale. Implanté au pied du Cousson, ce terrain bénéficie d'une excellente exposition et offre une vue dégagée remarquable sur la montagne emblématique et la vallée de la Bléone. Un cadre naturel rare, alliant sérénité, ensoleillement et qualité de vie. À seulement 5 minutes du centre-ville et de la zone commerciale Saint-Christophe, vous profitez de toutes les commodités tout en vivant en pleine nature. La situation est également idéale grâce à la proximité :
des stations de ski du Grand Puy, de Chabanon et de Saint-Jean Montclar (40 minutes),
de Manosque et Sisteron (40 minutes),
d'Aix-en-Provence (1 heure).
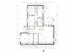
Un permis de construire déjà accordé permet de démarrer immédiatement un projet de villa de plain-pied de 110 m2, comprenant trois chambres, une salle de bain, une vaste pièce de vie avec cuisine ouverte donnant sur terrasse, un cellier et un garage. Le permis est modifiable, offrant une grande liberté de conception avec la possibilité de construire jusqu'à 200 m2 au sol et 200 m2 supplémentaires en R+1, selon vos envies. Une étude de sol G1 a déjà été réalisée sur l'ensemble du lotissement. Surface du terrain : 505 m2 DPE : Non soumis Prix : 99 900 EUR honoraires d'agence inclus Un bien rare, une vue exceptionnelle et la dernière opportunité dans ce lotissement prisé. À découvrir sans tarder. Cette annonce vous est proposée par Esposito Christelle - - NoRSAC: 520601493, Enregistré au Greffe du tribunal de commerce de Salon de Provence
505 m²
198 €
505 m²
1
Oui
Contact ESPOSITO
Contacter gratuitement à l'aide du formulaire ci-dessous.