EXCLUSIVITE AGENCE - Versant Hautacam, maison neuve de type
Argelès-Gazost 65400
0
Honoraires à la charge de l'acquéreur (Prix hors honoraires : 355000 euros).
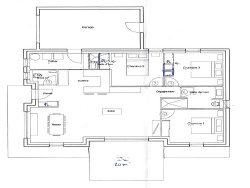
EXCLUSIVITE AGENCE - Versant Hautacam, maison neuve de type 4, garage, terrasse et terrain 630m2. Sur le versant du Hautacam, à 3kms d'ARGELES, maison neuve d'une surface habitable de 85m2, avec garage de 19m2 et terrasse de 20m2. Elle dispose d'une entrée, pièce de vie avec cuisine ouverte, 3 chambres avec placards, arrière cuisine/cellier/buanderie, salle d'eau et WC séparés. Depuis la pièce de vie, accès à la terrasse de 20m2. Exposition SUD/SUD-OUEST, sur un terrain de 630m2. Assainissement individuel. Double vitrage et volets roulants électriques. Chauffage par pompe à chaleur air/air. Livraison prévue, fin 2025. RT 2020, Prévoir en plus du prix affiché, l'aménagement, la pose et le fourniture de la cuisine, ainsi que les peintures. Les informations sur les risques auxquels ce bien est exposé sont disponibles sur le site Géorisques
85 m²
4 365 €
35 m²
630 m²
4
3
1
1
4.51 %
2022
Sud
Ouest
1
1
Oui
Oui
Consommations énergétiques
Logement économe
105
Logement énergivore (kWhEP/m2/an)
Émissions de gaz à effet de serre
Faible émission de GES
10
Forte émission de GES(kgeqCO2/m2/an)
Contact EPAGNOUX
Contacter gratuitement à l'aide du formulaire ci-dessous.