KW Partners vous propose en exclusivité ce bel appartement familial de 4 pièces, situé au 3éme étage d'une petite copropriété bien entretenue, dans une rue calme à sens unique, au c?ur du quartier Princes Marmottan.
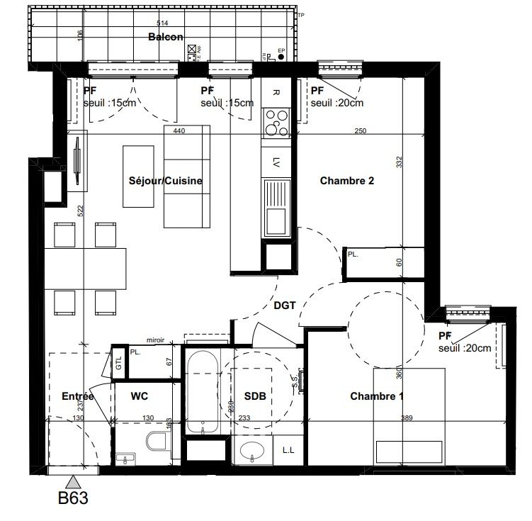
Cet appartement traversant de 86,68 m2 Carrez (89,15 m2 au sol) offre un agencement optimisé.
Il comprend une entrée avec rangements intégrés, un vaste double séjour avec une cuisine américaine aménagée et équipée, un bar convivial, un espace repas donnant sur un balcon attenant.
L'espace nuit, bien séparé, se compose de 3 chambres, d'une salle de bains, d'une buanderie et des toilettes séparés.
Ses principaux atouts :
- quartier calme et sectorisation scolaire recherchée Boulogne ? Princes Marmottan
- un appartement par étage
- un plan fonctionnel avec séparation jour/nuit
- des volumes généreux et espaces modulables
- un vaste séjour
- un balcon
L'appartement est vendu avec une cave en sous-sol. Vous avez également la possibilité de louer une place de stationnement dans la copropriété.
Cet appartement familial, dans un environnement calme, à proximité immédiate des écoles, commerces et transports allie charme, confort et praticité.
Contactez dès maintenant :
Virginie HERVOCHON (EI) RSAC 893 384 040
06 14 78 03 67
virginie.hervochon@kwpartners.fr
86 m²
9 302 €
41 m²
4
3
1
1
3 sur 6
1963
Américaine
Oui
Oui
Consommations énergétiques
Logement économe
197
Logement énergivore (kWhEP/m2/an)
Émissions de gaz à effet de serre
Faible émission de GES
31
Forte émission de GES(kgeqCO2/m2/an)
Contact Virginie HERVOCHON
Contacter gratuitement à l'aide du formulaire ci-dessous.