Exclusivité Superbe F2 avec vue panoramique sur le centre-vi
Évreux 27000
0
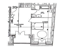
Situé au coeur du quartier recherché Saint-Michel, rue du Panorama, cet appartement F2 vous séduira par sa vue imprenable sur le centre-ville d'Évreux. Vous profiterez d'un séjour lumineux avec cuisine équipée, idéal pour recevoir ou se détendre. La chambre spacieuse et une grande salle de bain, offrant tout le confort nécessaire au quotidien. La situation est idéale, à deux pas des commerces, des transports et de toutes les commodités. Une place de parking privative complète ce bien rare sur le secteur. Ne manquez pas cette opportunité unique de vivre dans un cadre privilégié, alliant praticité et qualité de vie !
DPE/C GES/C Montant estimé des dépenses annuelles d'énergie pour un usage standard entre 500 et 820 EUR indexées aux années 2021, 2022 et 2023 (ou 2021 uniquement) (si logement F ou G 'Logement à consommation énergétique excessive : classe F ou G') Pour visiter et vous accompagner dans votre projet, contactez Benoît LEFEBVRE, au 0646468039 b.lefebvre@expertimo.com. Selon l'article L.561.5 du Code Monétaire et Financier, pour l'organisation de la visite, la présentation d'une pièce d'identité vous sera demandée. « Les informations sur les risques auxquels ce bien est exposé sont disponibles sur le site Géorisques : www.georisques.gouv.fr ». Certaines photos ont été retouchées par l'IA pour vous permettre de vous projeter. Mandat no97022 Cette annonce vous est proposée par LEFEBVRE Benoît - EI - NoRSAC: 432 404 747, Enregistré à Greffe du tribunal de commerce de Evreux - Annonce rédigée et publiée par un Agent Mandataire -
39 m²
3 154 €
2
1
Sud
Oui
Oui
Oui
Consommations énergétiques
Logement économe
153
Logement énergivore (kWhEP/m2/an)
Émissions de gaz à effet de serre
Faible émission de GES
29
Forte émission de GES(kgeqCO2/m2/an)
Contact Benoît LEFEBVRE
Contacter gratuitement à l'aide du formulaire ci-dessous.