EXEPTIONNEL ! Appartement duplex au coeur de la Cité Médiavale de Carcasonne
Carcassonne 11000
0
A vendre Bien d'exception au coeur de la Cité Médiévale de Carcassonne
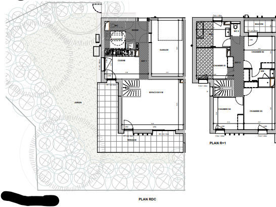
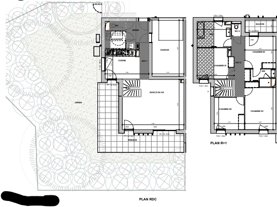
Rareté absolue au coeur de la Cité de Carcassonne, classée au patrimoine mondial de l'UNESCO : découvrez ce duplex de 83 m², occupant les deux derniers niveaux (R+1 et R+2) d'une bâtisse historique datant de 1700, idéalement située face au célèbre Château Comtal.
Ce lieu chargé d'histoire offre une vue imprenable, une authenticité incomparable et surtout un potentiel immense pour qui saura lui redonner vie.
L'appartement se compose actuellement d'un salon, d'une cuisine, de deux chambres et de deux salles de bain. Des travaux de rénovation sont à prévoir, mais les possibilités sont infinies :
Projets possibles :
Créer une résidence secondaire de charme dans un site mondialement connu, pour les amoureux de la pierre et du patrimoine.
Rénover pour proposer un logement de prestige en location saisonnière (type Airbnb) ? un investissement rentable dans l'un des lieux les plus touristiques de France.
Transformer le lieu en espace culturel ou ludique : atelier d'artiste, galerie, escape game, musée miniature, boutique thématique?
Ou encore, l'utiliser comme espace de stockage haut de gamme pour les commerçants de la Cité.
Dans un cadre aussi emblématique, chaque projet prend une dimension unique. Peu de biens réunissent autant de caractère, d'histoire et de potentiel au sein même des remparts.
Une opportunité exceptionnelle pour un acquéreur visionnaire souhaitant s'inscrire dans la légende de la Cité de Carcassonne.
Prix : 499 000 euros (honoraires à la charge du vendeur)
Contact Florence OMNES +33 6 30 78 28 51 f.omnes@proprietes-privees.com
DPE E GES E
Montant estimé des dépenses annuelles d'énergie pour un usage standard entre 1800 et 2500 euros indexées aux années 2021, 2022 et 2023.
Pour visiter et vous accompagner dans votre projet, contactez Florence OMNES, au 0630782851 ou, par courriel à f.omnes@proprietes-privees.com.
Selon l'article L.561.5 du Code Monétaire et Financier, pour l'organisation de la visite, la présentation d'une pièce d'identité vous sera demandée.
Cette présente annonce a été rédigée sous la responsabilité éditoriale de Florence OMNES agissant sous le statut d'agent commercial immatriculé au RSAC 521 712 638 auprès de SAS PROPRIETES PRIVEES, au capital de 44 920 euros, ZAC LE CHÊNE FERRÉ - 44 ALLÉE DES CINQ CONTINENTS 44120 VERTOU; SIRET 487 624 777 00040, RCS Nantes. Carte Professionnelle Transactions sur immeubles et fonds de commerce (T) et Gestion immobilière (G) n°CPI 4401 2016 000 010 388 délivrée par la CCI Nantes - Saint Nazaire. Compte séquestre n°30932508467 BPA SAINT-SEBASTIEN-SUR-LOIRE (44230). Garantie GALIAN-SMABTP - 89 rue de la Boétie, 75008 Paris - n°28137 J pour 2 000 000 euros pour T et 120 000 euros pour G. Assurance responsabilité civile professionnelle par GALIAN-SMABTP n° de police 28137.J
Mandat réf : 426527 - Le professionnel garantit et sécurise votre projet immobilier.
Florence OMNES (EI) Agent Commercial - Numéro RSAC : 521 712 638 - .
Les informations sur les risques auxquels ce bien est exposé sont disponibles sur le site Géorisques : www. georisques. gouv. fr
83 m²
6 012 €
4
2
2
1
2 sur 2
1700
Séparée
Oui
Consommations énergétiques
Logement économe
244
Logement énergivore (kWhEP/m2/an)
Émissions de gaz à effet de serre
Faible émission de GES
53
Forte émission de GES(kgeqCO2/m2/an)
Contact Florence OMNES
Contacter gratuitement à l'aide du formulaire ci-dessous.