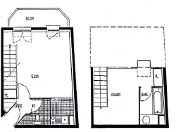
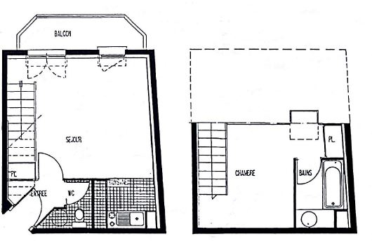
Appartement de type T1 de 29.30 m2 situé en rez de jardin dans une résidence de sécurisée, a deux pas du marché de Montgeron . Séduit par ses volumes, sa luminosité et son espace extérieur privé de 54 m2, un véritable prolongement du séjour exposé plein sud.
Un séjour de 19 m2 avec une grande baie vitrée donnant sur le jardin Une cuisine indépendante, salle de bains avec WC Terrasse + jardin privatif, sans vis a vis hauteur sous plafond 2.50 m Ballon d'eau chaude Atlantic lineo 100L (neuf, classe B) Chauffage individuel, double vitrage PVC Cave en sous sol // place de parking en sous-sol
Confort et Performance Energétique : DPE D / GES B Aucun audit énergétique requis a ce jour Résidence de 1993, parties communes en excellent état
Idéalement situé a proximité des commerces de quartier, des écoles et des transports. la gare RER D MONTGERON - CROSNE est accessible en moins de 15 minutes a pied (1km), reliant Paris gare de lyon en 20 minutes
Un bon investissement patrimonial VENDU OCCUPE, cet appartement constitue une opportunité solide pour un investisseur à la recherche d un placement sécurisé dans une commune dynamique, avec une demande locative constante. Sa configuration en rez de jardin avec extérieur, sa cave et son parking en font un bien rare sur le marché , facile à valoriser à moyen terme.
Copropriété de 201 lots principaux, sans procédure en cours Charges de copropriété raisonnables Honoraires a la charge du vendeur
Honoraires à la charge du vendeur. Dans une copropriété de 201 lots. Aucune procédure n'est en cours. Classe énergie D, Classe climat B Montant moyen estimé des dépenses annuelles d'énergie pour un usage standard, établi à partir des prix de l'énergie de l'année 2022 : entre 510.00 et 750.00 . Les informations sur les risques auxquels ce bien est exposé sont disponibles sur le site Géorisques : georisques.gouv.fr.
29.3 m²
4 642 €
19 m²
1
1
1
01/11/2025
60.00 € / mois
1993
Sud
Oui
Oui
1
1
Oui (201 lots)
Consommations énergétiques
Logement économe
253
Logement énergivore (kWhEP/m2/an)
Émissions de gaz à effet de serre
Faible émission de GES
7
Forte émission de GES(kgeqCO2/m2/an)
Contact
Contacter gratuitement à l'aide du formulaire ci-dessous.