F2 43m2 lumineux avec balcon situé en plein centre ville
Drancy 93700
0
Honoraires à la charge de l'acquéreur (Prix hors honoraires : 136500 euros).
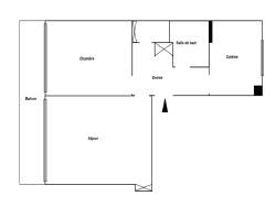
Quartier Centre-Ville. L'Agence le Réseau avec une commission fixe de 8 500 euros, vous propose à la vente ce 2 pièces lumineux et en parfait état de 43m2 (42.11m2 loi Carrez), avec balcon, situé Avenue Henri Barbusse, dans une copropriété bien entretenue dans un quartier recherché et au pied de tous les commerces. L'appartement en parfait état est au 3ème étage, lumineux sans perte de place, se compose d'un séjour lumineux sans vis-à-vis de 16m2 donnant sur le balcon, d'une cuisine séparée et équipée, d'une chambre avec rangements de 11m2 et d'une salle de bains et un WC séparé. Le bien bénéficie également de fenêtres en double vitrage. Les charges, de 100 euros par mois, incluent notamment, l'eau froide et l'entretien des parties communes. Le chauffage et l'eau chaude sont individuels et au gaz. Le prix de vente est de 145 000EUR incluant 8 500EUR d'honoraires d'agence soit 136 500EUR hors honoraires d'agence soit 1.70% à la charge de l'acquéreur.