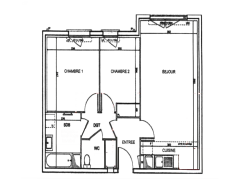
A 2 PAS DE L'HOPITAL HENRI MONDOR. Appartement F3 avec parking, lumineux, fonctionnel et idéalement situé. Au coeur d'une résidence récente, calme et parfaitement entretenue, découvrez un 3 pièces offrant une atmosphère chaleureuse et familiale. Séjour lumineux avec large baie vitrée donnant sur un environnement arboré, permettant un agréable espace salon et repas. Cuisine indépendante moderne et fonctionnelle avec nombreux rangements. Deux chambres confortables aux volumes équilibrés, dont une parentale élégante et une chambre d'enfant parfaitement aménagée. Salle de bains moderne avec baignoire, meuble vasque et espace buanderie, WC séparé. Parking en sous-sol, résidence sécurisée, environnement calme et proche commerces, écoles et transports. Un bien idéal pour un premier achat, un jeune couple ou une famille recherchant confort et praticité.
59.14 m²
4 549 €
24 m²
2
2
1
185 € / mois
Oui
1
Oui
Oui
Consommations énergétiques
Logement économe
64
Logement énergivore (kWhEP/m2/an)
Émissions de gaz à effet de serre
Faible émission de GES
12
Forte émission de GES(kgeqCO2/m2/an)
Contact VAJOU
Contacter gratuitement à l'aide du formulaire ci-dessous.