Honoraires à la charge de l'acquéreur (Prix hors honoraires : 625000 euros).
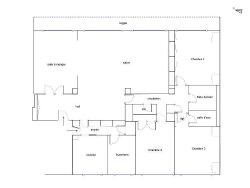
B.I.C. IMMOBILIER -LYON 3EME-PREFECTURE-AVENUE DE SAXE- Dans le quartier dynamique et très apprécié de la Préfecture, à proximité des transports (ligne B Place Guichard et D à Saxe Gambetta, bus, tramway arrêt Liberté, pistes cyclables au pied de l'immeuble) des commodités (boulangerie, supermarché, marché des quais du Rhône 3 fois par semaine, restaurants de quartier) et des écoles. En étage élevé d'un immeuble de standing PITANCE très bien entretenu avec ascenseur.Appartement F5 traversant (Est/Ouest) de 145 m2 carrez (149 m2 au sol)composé d'un hall d'entrée confortable desservant un double séjour-salle à manger lumineux de 48 m2 ouvrant sur balcon filant de 14 m2 exposé à l'Est. Le hall dessert également une cuisine séparée à l'Ouest ainsi qu'une pièce buanderie et de nombreux rangements. L'espace nuit est composé de deux chambres de 13 m2 et 13,5m2 à l'Ouest sur cour dont une avec sa salle d'eau attenante ainsi que d' une troisième chambre à l'Est ouverte sur le balcon. L'appartement dispose d'une salle de bain, une salle d'eau, ainsi que de wc séparés. Le chauffage est un chauffage urbain collectif; Les charges s'élèvent à 450 /mois (charges de copropriété, chauffage, eau chaude, eau froide).Une cave de 9m2 complète cet appartement. Travaux à prévoir. Immeuble en copropriété. Pas de procédure en cours. Honoraires inclus charge acquéreur.
Honoraires inclus de 4% TTC à la charge de l'acquéreur. Prix hors honoraires 625 000 . Dans une copropriété de 30 lots. Aucune procédure n'est en cours. Classe énergie C, Classe climat C Montant estimé des dépenses annuelles d'énergie pour un usage standard : entre 1630.00 et 2250.00 sur les années 2021, 2022 et 2023 (abonnements compris). Les informations sur les risques auxquels ce bien est exposé sont disponibles sur le site Géorisques : georisques.gouv.fr.
Votre conseiller B.I.C. Immobilier : Agent Immobilier-gérant - Daniel BRUN Carte T CPI69012020000044528
145 m²
4 483 €
14 m²
5
3
2
2 (séparés)
6 sur 7
4 %
450.00 € / mois
1970
Est
Ouest
1 (14 m²)
Oui
Oui
Oui
Oui (30 lots)
Consommations énergétiques
Logement économe
146
Logement énergivore (kWhEP/m2/an)
Émissions de gaz à effet de serre
Faible émission de GES
12
Forte émission de GES(kgeqCO2/m2/an)
Contact Daniel BRUN
Contacter gratuitement à l'aide du formulaire ci-dessous.