Honoraires à la charge de l'acquéreur (Prix hors honoraires : 270000 euros).
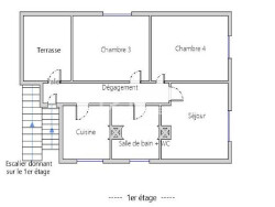
Pavillon avec fort potentiel Idéal projet familial ou investissement À découvrir sans tarder, ce pavillon à usage d'habitation d'environ 100 m² offrant de nombreuses possibilités d'évolution et de valorisation après travaux. Édifiée sur un terrain d'environ 499 m², cette maison se compose de deux niveaux indépendants, offrant une configuration idéale pour une famille, ou une habitation avec espace professionnel. Au rez-de-jardin, vous trouverez deux entrées, une cuisine d'été, un séjour-salon, une chambre, une salle d'eau avec WC ainsi qu'un garage. Au rez-de-chaussée surélevé, l'espace de vie principal comprend une entrée, un dégagement, une cuisine aménagée, un séjour lumineux, deux chambres, une salle de bains et un WC. Les combles aménageables offrent un beau potentiel supplémentaire pour agrandir la surface habitable selon vos besoins. À l'extérieur, vous profiterez d'une terrasse, d'un balcon et d'un abri de jardin, le tout sur une parcelle agréable et bien agencée.
Honoraires inclus de 5.56% TTC à la charge de l'acquéreur. Prix hors honoraires 270 000 . Logement à consommation énergétique excessive : Classe énergie G, Classe climat G Montant moyen estimé des dépenses annuelles d'énergie pour un usage standard, établi à partir des prix de l'énergie de l'année 2025 : entre 4980.00 et 6810.00 . Les informations sur les risques auxquels ce bien est exposé sont disponibles sur le site Géorisques : georisques.gouv.fr.
Votre conseiller We Invest France : Sylvie Barbosa Agent commercial (Entreprise individuelle) RSAC 818 133 886 BOBIGNY. Les informations sur les risques auxquels ce bien est exposé sont disponibles sur le site Géorisques : www.georisques.gouv.fr
Maison traditionnelle
97.64 m²
2 919 €
499 m²
6
1
1
2
5.56 %
1939
Consommations énergétiques
Logement économe
423
Logement énergivore (kWhEP/m2/an)
Émissions de gaz à effet de serre
Faible émission de GES
130
Forte émission de GES(kgeqCO2/m2/an)
Contact Sylvie BARBOSA
Contacter gratuitement à l'aide du formulaire ci-dessous.