Fabrègue appartement T3 de 57.1 m2 avec terrasse et deux pla
Fabrègues 34690
0
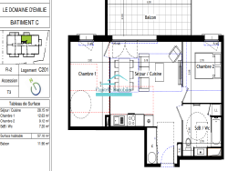
Capitelle immobilier vous propose sur la commune de Fabrègue, un appartement T3 d'une surface de 57.1 m2. Il se compose d'un espace de vie avec coin cuisine, une salle de bain avec toilette et deux chambre ainsi qu'une une terrasse de 11.96 m2. Bénéficiant d'une exposition plein sud et de deux places de parking, cette appartement est idéalement située dans un environnement calme et paisible, à proximité des commerces et des écoles. Prix : 268 000 euros Les honoraires sont à la charge du vendeur. Contactez Baptiste de l'Agence CAPITELLE IMMOBILIER Frontignan.
57.1 m²
4 694 €
11 m²
28 m²
3
2
1
1
2 sur 2
2028
Est
Nord
1 (11 m²)
2
Consommations énergétiques
Logement économe
1
Logement énergivore (kWhEP/m2/an)
Émissions de gaz à effet de serre
Faible émission de GES
1
Forte émission de GES(kgeqCO2/m2/an)
Contact CAPITELLE
Contacter gratuitement à l'aide du formulaire ci-dessous.