Face au Canal du Midi Appartement T5 de 121 m2 en dernier é
Toulouse 31000
0
Les charges de location sont prévisionnelles mensuelles avec régularisation annuelle.
La part des honoraires pour la réalisation de létat des lieux de ce bien est de 360 euros.
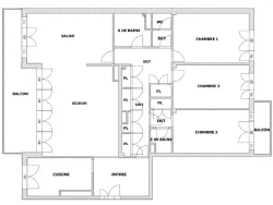
4438 - Cet appartement T5 traversant, entièrement rénové, est situé au 10ème et dernier étage avec ascenseur, sur le Boulevard de la Gare. Profitez d'une vue dégagée sur tout Toulouse. Il est composé d'une entrée, d'une cuisine aménagée et semi équipée, de trois chambres dont une avec salle d'eau et balcon, d'un spacieux séjour ouvert sur la salle à manger, d'une salle de bains séparée, un WC séparé et d'un grand balcon . De plus, l'appartement dispose de nombreux rangements. une cave en sous-sol complète cette location.. Proche du centre ville, à 10 minutes à pied du métro Jean Jaurès. DPE D- GES C . Climatisation dans le séjour et l'espace nuit. chauffage au gaz individuel. Disponible dès le 09 février 2026
120.14 m²
5
3
1
1
1
10 sur 10
1560 %
01/10/2024
140 € / mois
1
Oui
Oui
Oui
Oui
Oui (61 lots)
Consommations énergétiques
Logement économe
200
Logement énergivore (kWhEP/m2/an)
Émissions de gaz à effet de serre
Faible émission de GES
24
Forte émission de GES(kgeqCO2/m2/an)
Contact Corimo Conseil Immobilier
Contacter gratuitement à l'aide du formulaire ci-dessous.