Faubourg Saint-Honoré / Élysée Dernier étage, seul sur le
Paris 75008
0
Honoraires à la charge du vendeur.
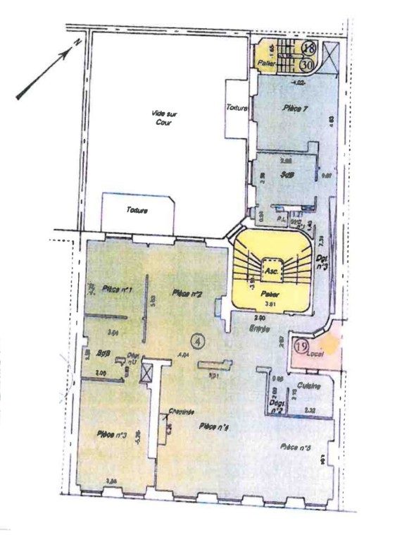
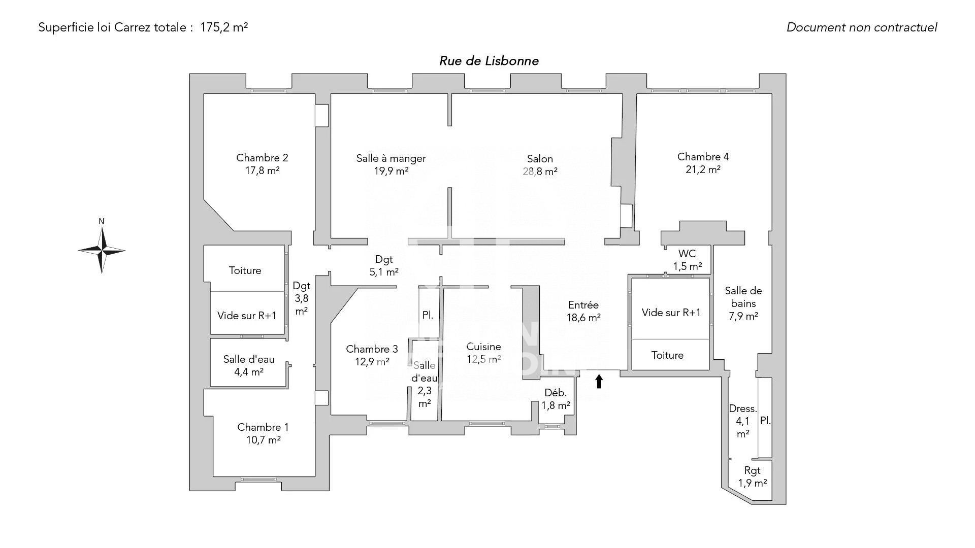
À une adresse emblématique du luxe parisien, entre le Palais de l'Élysée et la place Vendôme, au coeur du très prisé 8e arrondissement, découvrez ce triplex rare et lumineux de 172,67 m2 pondérés (147,03 m2 loi Carrez + 51,29 m2 d'espaces extérieurs pondérés), situé au dernier étage et seul sur son palier, dans un immeuble de grand standing avec ascenseur et service de conciergerie. Entièrement rénové avec des matériaux haut de gamme, ce bien d'exception conjugue élégance parisienne, confort contemporain et calme absolu. Il bénéficie d'une exposition plein sud, d'un ensoleillement optimal, et d'une vue imprenable sur les toits de Paris et la Tour Eiffel. L'agencement intérieur, pensé pour une vie fluide et raffinée, comprend :
Un vaste espace de réception baigné de lumière,
Une salle à manger ouverte sur une cuisine sur-mesure entièrement équipée,
Une suite parentale avec salle de bains, douche et dressings,
Une seconde chambre avec salle d'eau,
Plusieurs balcons et une superbe terrasse de plain-pied de 38,91 m2 exposée plein sud, idéale pour recevoir ou profiter d'instants de quiétude face à un panorama d'exception.
Volumes généreux, prestations haut de gamme, vues dégagées, espaces extérieurs rares, calme absolu et localisation ultra-prestigieuse : ce triplex incarne l'excellence de l'art de vivre parisien.
Triplex
172.67 m²
17 953 €
12 m²
41 m²
4
2
1
1
2
8 sur 8
768 € / mois
1860
Sud
1 (12 m²)
Oui
Oui
Oui
1
Oui
Oui
Oui (124 lots)
Consommations énergétiques
Logement économe
300
Logement énergivore (kWhEP/m2/an)
Émissions de gaz à effet de serre
Faible émission de GES
39
Forte émission de GES(kgeqCO2/m2/an)
Contact OURAK Sihem
Contacter gratuitement à l'aide du formulaire ci-dessous.