Dans un bel environnement, proche de Forcalquier, nous vous proposons une ferme provençale en pierres comprenant 2 niveaux de 60m² environ chacun, avec un grenier aménageable, un garage de 25m² environ et une pièce indépendante en rez de jardin avec sa terrasse couverte: le tout, sur une parcelle de 7500m² environ, verdoyante, sans vis à vis.
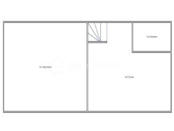
Le rez de jardin est composé d'une pièce de vie avec cheminée, une cuisine rustique, un wc avec lavabo.
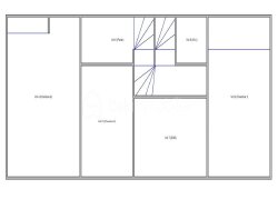
Le niveau supérieur, en deux paliers, offre d'abord une chambre avec une salle de bains et des toilettes séparés ainsi que l'accès au grenier, puis deux chambres dont une avec lavabo.
Prévoir des travaux de rénovation indispensables: toiture, isolation, électricité, fosse septique, double vitrage, chauffage
Cette annonce référence 301831 vous est présentée par votre agent commercial BSK Immobilier DANIELLE LAUGIER (EI) immatriculé au RSAC de MANOSQUE (04100) sous le numéro 53532194700017.
Prix du bien : 395 000,00 €
Les honoraires d'agence sont à la charge du vendeur.
A propos des performances énergétiques :
Date de réalisation du diagnostic énergétique : 11/03/2025
Score DPE : 373 kWhEP/m²/an
Score GES : 61 kgepCO2/m²/an
Montant estimé des dépenses annuelles d'énergie pour un usage standard : entre 3100.00 € et 4240.00 € par an. Prix moyens des énergies indexés sur l'année 2023 (abonnements compris).
Les informations sur les risques auxquels ce bien est exposé sont disponibles sur le site Géorisques : www.georisques.gouv.fr
115 m²
3 435 €
4
3
1
2
1900
Sud
Oui
Oui
Consommations énergétiques
Logement économe
373
Logement énergivore (kWhEP/m2/an)
Émissions de gaz à effet de serre
Faible émission de GES
61
Forte émission de GES(kgeqCO2/m2/an)
Contact Iad France - Danielle LAUGIER
Contacter gratuitement à l'aide du formulaire ci-dessous.