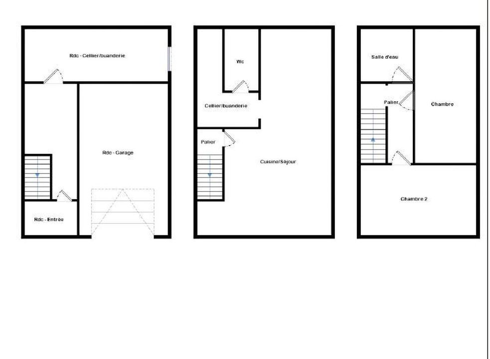
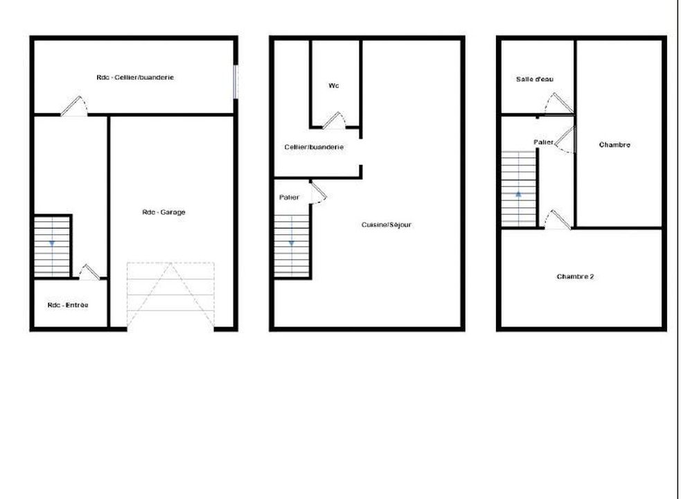
Prix : 87 000 EUR FAI Mandat no1002180 À SAISIR Potentiel Exceptionnel Terrain Clôturé 1 906 m2 À la recherche d'un projet authentique en pleine campagne ? Cette ferme ancienne offre un cadre paisible et verdoyant, avec un terrain entièrement clôturé d'environ 1 906 m2. La maison principale de 105 m2 habitables comprend :
Un séjour lumineux avec cheminée
Une cuisine indépendante
Deux chambres au rez-de-chaussée
Salle d'eau avec WC
À l'étage : trois pièces mansardées avec poutres apparentes, à aménager selon vos besoins
Plusieurs dépendances complètent ce bien, idéales pour un atelier ou du stockage. Rénovation à prévoir. Une structure saine et de beaux volumes pour créer un lieu de vie sur mesure. Contact et visite : Nicolas Bernier 06 68 69 19 41 nicolas.bernier@gm-immobilier.eu Les informations sur les risques auxquels ce bien est exposé sont disponibles sur le site Géorisques : www.georisques.gouv.fr
105 m²
829 €
1906 m²
6
3
1
1
1948
4
1
Oui
Consommations énergétiques
Logement économe
449
Logement énergivore (kWhEP/m2/an)
Émissions de gaz à effet de serre
Faible émission de GES
14
Forte émission de GES(kgeqCO2/m2/an)
Contact BERNIER Nicolas
Contacter gratuitement à l'aide du formulaire ci-dessous.