Venez découvrir cette ancienne ferme sur une parcelle de 3305m2, en zone totalement constructible.
Celle ci se compose :
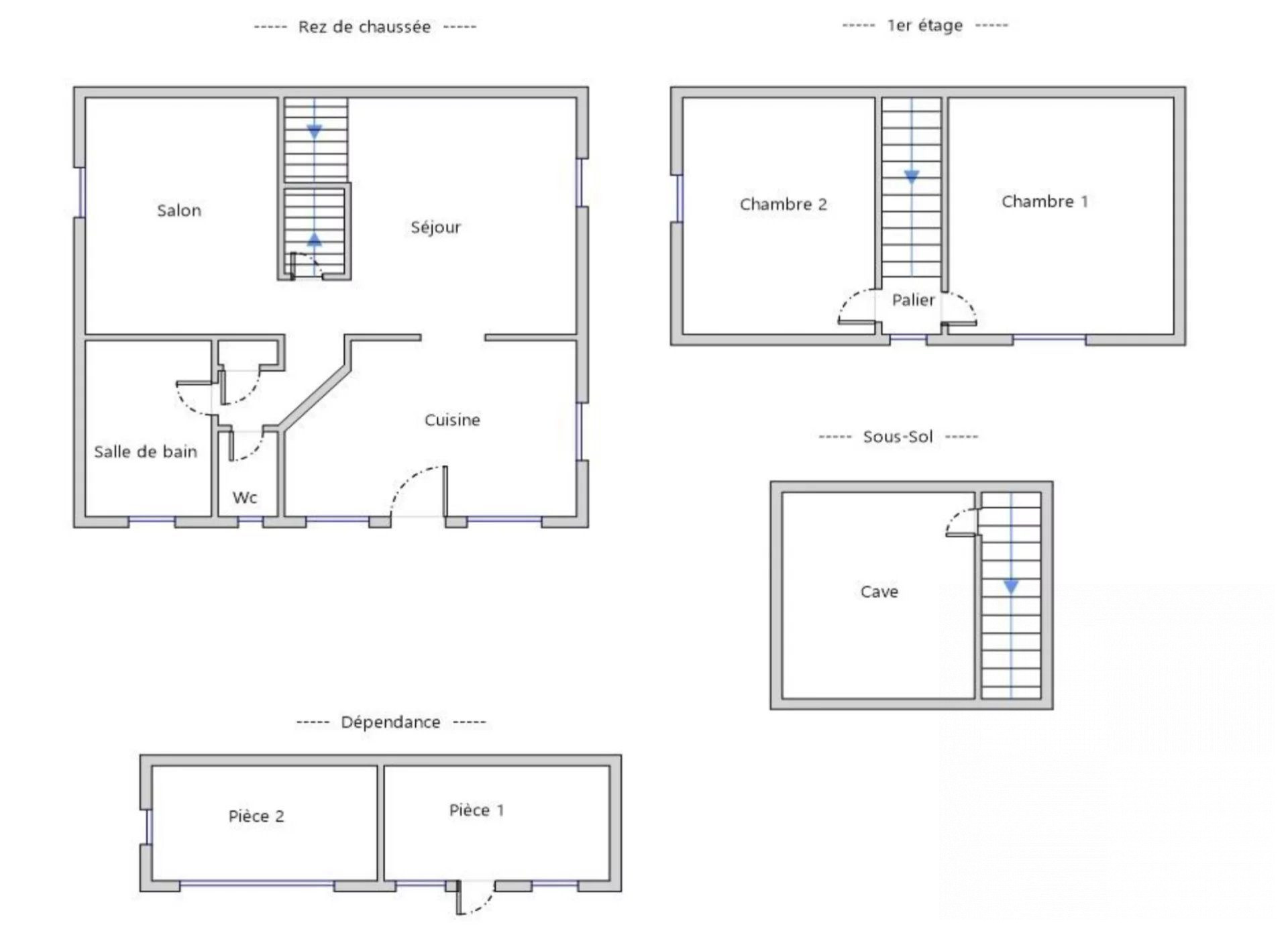
D'un appartement de 85m2, disposant d'une grande pièce de vie ouverte sur cuisine, 2 chambres, un wc, une salle de douche, celui ci se trouve à l'étage.
Tout le bas ainsi qu'un grand grenier sont en aménageable pour y créer une magnifique longère d'environ 160m2, l'appartement qui est en très bon état pourrait vous loger le temps des travaux. La ferme dispose également d'une immense grange en bois séparée en deux et disposant de plusieurs accès véhicules, camion ou tracteur. D'un grand hangar en tôle (bail possible à 300e/mois si besoin )
D'une parcelle constructible d'environ 725m2, disposant de 37m de façade.
Produit très rare, opportunité à ne pas manquer !
Honoraires à la charge du vendeur. Classe énergie D, Classe climat B Montant estimé des dépenses annuelles d'énergie pour un usage standard : entre 1630.00 et 2220.00 sur les années 2021, 2022 et 2023 (abonnements compris). Les informations sur les risques auxquels ce bien est exposé sont disponibles sur le site Géorisques : georisques.gouv.fr.