FINISTERE - Camaret-sur-Mer (29570) - A VENDRE - MAISON T6 141M² - 4 CHAMBRES - GARAGE - AUCUNS TRAVAUX A PREVOIR - SUR TERRAIN DE 200M²
Camaret-sur-Mer 29570
0
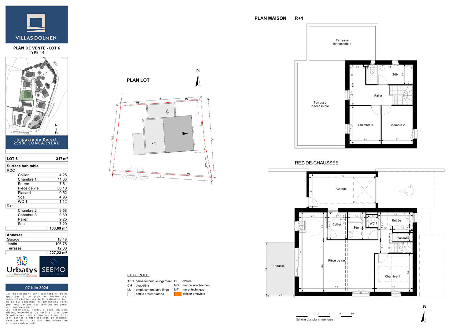
***** VISITE VIRTUELLE SUR DEMANDE ***** CAMARET-SUR-MER - CENTRE VILLE ***** En couple ou en famille, à la recherche d'une maison de 19ème siècle entièrement rénovée pour vivre à l'année ou vos vacances ? Stop ! Cette pépite est faite pour vous. A deux pas du bourg et de la mer, elle sera vous séduire par ses beaux volumes. En rez de jardin, la pièce de vie de 47m² baignée de lumière grâce à une exposition idéale au SUD est agréable avec son accès terrasse de 50m² à l'abri des regards. Une buanderie, un wc et un garage de 40m² viennent compléter ce niveau. Au 1er étage, elle vous propose 2 chambres agréables dont une de 25m² pour les amoureux des grands espaces. La salle de bain est moderne avec baignoire et douche, wc séparé. Au dernier étage, deux belles chambres de 12 et 13m² avec la salle d'eau attenante. LES PLUS : garage avec porte automatique, assainissement aux normes, excellent DPE et bien d'autres prestations. Une visite s'impose! SURFACES - utile 191m² - carrez 136m² - habitable 141m² - pondérée 143m².. DPE : C (134) - GES : A (4) - Coût annuel d'énergie entre 1040€ et 1460€ (chauffage entre 640€ et 880€ - eau chaude entre 330€ et 460€ - éclairage entre 40€ et 70€ - auxiliaire entre 30€ et 50€). Bien non soumis à la copropriété. Les honoraires sont à la charge de l'acheteur d'un montant de 11000 € soit 460000 € net vendeur (2.39%). La présente annonce immobilière est rédigée sous la responsabilité éditoriale de David Bianco. Les informations sur les risques auxquels ce bien est exposé sont disponibles sur le site Géorisques http://www.georisques.gouv.fr. Réf.: 188646-313523 - ICOMI FRANCE IMMOBILIER - BIANCO DAVID - 06 95 83 13 91 - david.bianco@icomi-france.fr - Agent Commercial EI - RSAC BREST 801 747 668 00011 - ***** LIVRE D OR DISPONIBLE SUR LE WEB *****
136 m²
3 463 €
47 m²
200 m²
6
4
1
1
3
1890
Sud
Oui
Oui
Consommations énergétiques
Logement économe
134
Logement énergivore (kWhEP/m2/an)
Émissions de gaz à effet de serre
Faible émission de GES
4
Forte émission de GES(kgeqCO2/m2/an)
Contact David BIANCO
Contacter gratuitement à l'aide du formulaire ci-dessous.