FINISTÈRE : Châteauneuf du Faou. Grande maison de ville de 4 chambres avec garage et jardin.
Châteauneuf-du-Faou 29520
0
Honoraires à la charge de l'acquéreur (Prix hors honoraires : 160400 euros).
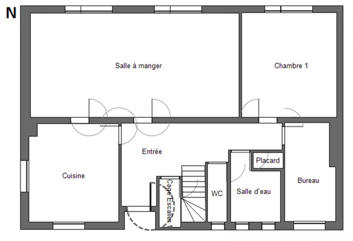
A Châteauneuf-du-Faou, à deux pas des commerces, des écoles et du canal de Nantes à Brest, cette maison de ville en pierre de 114 m² allie caractère et confort moderne. Construite en ardoise avec encadrements en granit, elle est implantée sur un terrain paysager de 758 m² avec puits, garage et dépendances. La propriété aurait besoin d'être modernisée à l'intérieur, mais elle bénéficie déjà du tout-à-l'égout, du chauffage au fioul et du double vitrage. Au rez-de-chaussée, une entrée mène à un séjour lumineux et une cuisine fonctionnelle, complétés par une buanderie et une salle d'eau avec WC. Le premier étage comprend deux grandes chambres de 17 m² chacune ainsi qu'une salle de bains avec WC. Le deuxième étage offre deux chambres mansardées (10,75 m² et 17 m² de surface utile) et un couloir. En sous-sol, une cave et une chaufferie. A l'extérieur, un garage de 28 m² et deux abris en brique, dont l'un récemment rénové, offrent de beaux espaces de rangement. La situation est idéale pour la vie de famille, avec écoles, commerces et services à proximité immédiate. Le canal et ses chemins de halage sont parfaits pour les balades et les activités de plein air. La commune s'anime également sur le plan culturel, avec l'ouverture du musée Paul Sérusier, la proximité du Domaine de Trévarez et, prochainement, le centre nautique de Penn ar Pont dédié aux loisirs (vélo et bateaux de plaisance). Les plages du littoral breton se rejoignent facilement, tandis que Quimper et Brest assurent un accès pratique aux gares, aux aéroports et aux liaisons maritimes. Cette maison en pierre, bien entretenue et fonctionnelle, constitue une opportunité rare de s'installer au coeur d'une ville accueillante et dynamique. Une visite s'impose pour découvrir tout son potentiel. (5.99 % honoraires TTC à la charge de l'acquéreur.) Katie TINNISWOOD (EI) Agent Commercial - Numéro RSAC : 831 920 855 - BREST.