FLOIRAC - Appartement T5 en duplex avec terrasse de 16m2 et
Floirac 33270
0
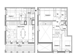
FLOIRAC centre - Lumineux T5 au dernier étage avec deux terrasses Cet appartement en duplex se compose d'une belle pièce de vie de 35m2 avec cuisine ouverte le tout donnant sur une belle terrasse de 16m2 exposé Sud ouest. Sur le meme niveau il dispose d'une belle suite parentale composé d'un dressing et d'une salle de bain. A l'étage, 2 belles chambre supplémentaires ainsi qu'un bureau ou chambre d'enfant et une salle de bain. Résidence sécurisée à proximité des commerces et des transports.Place de parking en sous-sol Emplacement premium à moins de 5 minutes à pied de toutes les commodités (poste, banque, boulangerie-pâtisserie, pharmacie, tabac-presse, supérette, bar). Les écoles et le collège sont également accessibles à pied, et l'Arkéa Arena se trouve à seulement 9 minutes. Vous n'avez plus qu'à poser vos valises dans ce cadre de vie privilégié ! Prix diminué grâce à la TVA réduite à 5,5 % (nous contacter pour vérifier votre éligibilité) et FRAIS DE NOTAIRES OFFERT. Contactez votre agence Fanny Dupain Immobilier pour organiser une visite 06.31.55.72.62 !!
Duplex
114 m²
3 623 €
34 m²
5
4
1
1
1
4 sur 4
2024
Sud
Ouest
Oui
1
1
Consommations énergétiques
Logement économe
55
Logement énergivore (kWhEP/m2/an)
Émissions de gaz à effet de serre
Faible émission de GES
2
Forte émission de GES(kgeqCO2/m2/an)
Contact Iad France - Linda BRIGE
Contacter gratuitement à l'aide du formulaire ci-dessous.