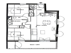
FLOIRAC À deux pas du centre-ville, découvrez ce bel appartement T3 de 65 m2 bénéficiant d'une agréable terrasse. Dès l'entrée, un dégagement vous mène vers un agréable séjour de 28m2 baigné de lumière, ouvert sur une cuisine et donnant directement accès à une terrasse de 14m2 idéale pour profiter des beaux jours. L'espace nuit se compose de deux chambres confortables ainsi que d'une salle de bains. Une place de parking en sous-sol complète ce bien. Vous serez séduits par la proximité immédiate des transports, des commerces et des services, offrant un cadre de vie pratique et agréable. NB : Photo à caractère d'ambiance, non contractuelle. Pour tous renseignements veuillez contacter Linda BRIGE au 06 31 55 72 62 agent commercial de la SAS Fanny Dupain Immobilier immatriculée au RSAC de Bordeaux sous le numéro 901363846.
65 m²
3 615 €
3
2
2013
Oui (2 lots)
Consommations énergétiques
Logement économe
81
Logement énergivore (kWhEP/m2/an)
Émissions de gaz à effet de serre
Faible émission de GES
15
Forte émission de GES(kgeqCO2/m2/an)
Contact Iad France - Linda BRIGE
Contacter gratuitement à l'aide du formulaire ci-dessous.