FONDS DE COMMERCE - LOCAL - PLEIN CENTRE DE BIARRITZ - 100 m2
Biarritz 64200
0
Bienvenue chez, l'agence familiale qui s'engage à un service immobilier d'exception. Découvrez une présentation soignée de ce bien : des photos professionnelles, un plan détaillé et une visite virtuelle immersive pour vous projeter dans un cadre unique.
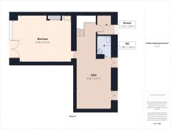
Découvrez ce très beau local, en cession de Bail, situé sur une artère stratégique de Biarritz qui bénéficie d'une forte visibilité et d'un passage piétonnier important. A seulement 200m de la plage centrale, ce fonds de commerce, aujourd'hui exploité comme traiteur haut de gamme et épicerie fine, a une surface de 100 m2 et une terrasse plein Sud pouvant accueillir 8 couverts. Il est réparti sur deux niveaux dont 52 m2 en rez-de-chaussée avec une boutique sur rue (28m2) et une arrière boutique (18m2) sur cour pouvant être aménagée en salle de réception avec 28 couverts, des toilettes séparés et un bureau. Au sous-sol, une cuisine tout équipée de matériel haut de gamme avec une chambre froide (4 m2), un économa avec étagère, un vestiaire avec toilettes séparés, une cour privative avec espace de stockage (10m2). Nous vous proposons la cession du bail de cet espace commercial traversant avec une vitrine façade de 3 m, entièrement repensé par une décoratrice d'intérieur, avec beaucoup de charme.
L'emplacement est idéal pour toutes activités sans nuisance et c'est un outil « clé en main » qui est proposé pour un traiteur, de la restauration rapide, une épicerie fine, un coffee-shop ou un salon de thé. Il peut également convenir pour une boutique de vêtements, salon de coiffure, ou tout service tertiaire.
Les + du bien :
- Localisation premium recherchée dans un quartier dynamique et attractif
- Optimisation de l'espace par un architecte entièrement repensé (sol, peintures, carrelage, inox) avec du matériel de cuisine de très grande qualité (four rationale Icombi PRO, petit four Ambassade, extraction, fourneaux 4 feux, salamandre Sofraca, cellule de refroidissement Friginox, cellule de refroidissement Henkenman, machine sous vide, hachoir PSV, robot coupe R752W, machine à trancher Kolossal, lave vaisselle Eco, marbre réfrigéré 5 portes, un tour réfrigéré, 2 armoires congélateur, une tour réfrigérée Hoshizaki, ...)
- Climatisation dans boutique et arrière boutique
- A proximité des transports (bus) et des parkings (100m)
- Aujourd'hui, vente à emporter uniquement mais marge de progression avec possibilité de restauration sur place dans l'arrière salle sur cour (possibilité de 28 couverts)
- Diversité de la clientèle : locale, de bureaux (avocats, juristes, dentistes, médecins, banque...), touristes.
A noter :
- Loyer mensuel HC : 2 850 €/mois
- Charges de copropriété : à confirmer ultérieurement
- coût annuel électricité (15 000 € par an) et gaz (2 000€ par an)
- Progression constante du CA (2024 : 580 000€)
- Le bien est soumis au statut de copropriété
- 2 lots principaux
- Aucune procédure en cours
Prix de Cession : 452 029 € (Hors Honoraires Agence)
Honoraires à la charge de l'Acquéreur de 37 970 €
Total à devoir par l'acquéreur de 490.000 € (Honoraires Agence inclus) soit honoraires représentant 8,4 % du prix de vente.
Ce bien a retenu votre intérêt ? Pour organiser la visite avec nous, rien de plus simple, prenez rendez-vous en ligne au moment qui vous convient le mieux.
Photos, visite virtuelle sur demande.
Découvrez ce bien grâce à la visite 3D et prenez RDV pour une visite sur notre site.
Les informations sur les risques auxquels ce bien est exposé sont disponibles sur le site Géorisques : www.georisques.gouv.fr
La présente annonce immobilière a été rédigée sous la responsabilité éditoriale de Madame, EI, Agent Commercial mandataire en immobilier immatriculé au Registre Spécial des Agents Commerciaux du Tribunal de Commerce de Paris.
SAS immobilier au capital de 5 000,00 € immatriculée sous le numéro de SIREN 837704584 dont le représentant légal est Monsieur.
Bien présenté par Agences de France par délégation.
Agences de France ? SIREN : 899413603 ? Titulaire de la carte T : 29012021000000009 non habilité à percevoir des fonds
97 m²
5 052 €
3
Contact Pascale FERRANTI
Contacter gratuitement à l'aide du formulaire ci-dessous.