Fonds de commerce hôtelier + murs (option) ? secteur Dinard/Saint-Malo
Dinard 35800
0
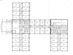
À 5 min de Dinard et 8 min de Saint-Malo, proche plages, ferry, aéroport et gares, hôtel rénové de 56 chambres (dont 8 familiales et 3 PMR) sur un terrain de 4 209 m² avec bâtiment R+1 de 1 174 m².
58 places de parking (dont 4 PMR)
Rénovations majeures entre 2010?2012 et 2021?2023 (sécurité, accessibilité, chambres, extérieurs)
Dossier architectural réalisé par un architecte DPLG
Prêt à l'exploitation, aux normes en vigueur
Secteur à fort potentiel touristique
Atouts :
Établissement prêt à l'exploitation, aux normes en vigueur
Environnement touristique dynamique
Proximité des axes de transport (aéroport, gares, ferry)
Opportunité d'investir dans un bien avec les murs à la vente en complément du fonds de commerce
Murs également à la vente (en option)
Larichardais
Les informations sur les risques auxquels ce bien est exposé sont disponibles sur le site Géorisques : www.georisques.gouv.fr
Prix de vente honoraires d'agence inclus : 640 000 € HT + 7 680 € TVA, soit 647 680 € TTC
Prix de vente hors honoraires d'agence : 601 600 € HT + 0 € TVA, soit 601 600 € TTC
Honoraires d'agence : 38 400 € HT + 7 680 € TVA, soit 46 080 € TTC (7.66 % TTC du prix de vente hors honoraires d'agence)
Honoraires charge acquéreur
Contactez votre consultant megAgence : Betty MALKA, Tél. : 06 58 30 31 26, E-mail : betty.malka@megagence.com - EI - Agent commercial immatriculé au RSAC de NANTERRE sous le numéro 829 328 087
1174 m²
545 €
58
Contact Marc Lelogeais
Contacter gratuitement à l'aide du formulaire ci-dessous.