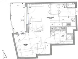
FONTAINE LES DIJON - Future résidence : Les Saffres d'or, vente sur plan d'un appartement T2 de 42 m², situé dans un quartier recherché. Ce logement parfaitement agencé comprend une belle pièce de vie de 24 m², une chambre spacieuse de 12 m², une salle d'eau moderne, ainsi qu'un balcon de 8 m² idéal pour profiter des beaux jours. Un garage en sous-sol complète ce bien. Ce bien est idéal pour un primo-accédant, avec la possibilité de bénéficier du Prêt à Taux Zéro, permettant de réduire les mensualités. Il convient également parfaitement à un investisseur, grâce à son emplacement stratégique et sa forte attractivité locative. Les travaux viennent de démarrer, livraison prévue fin 2026.
Honoraires à la charge du vendeur. Dans une copropriété de 50 lots. Aucune procédure n'est en cours. DPE vierge. Les informations sur les risques auxquels ce bien est exposé sont disponibles sur le site Géorisques : georisques.gouv.fr.
42.85 m²
4 551 €
7 m²
25 m²
2
1
1
1
2
2026
1 (7 m²)
1
Oui (50 lots)
Contact CABINET EVEN DU FOU
Contacter gratuitement à l'aide du formulaire ci-dessous.