FONTAINEBLEAU - F3 DE 54.38 M² - 2 CH - 1 grande PLACE PARKING
Fontainebleau 77300
0
Honoraires à la charge du vendeur.
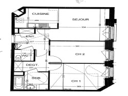
RESIDENCE de standing LE TOURING CLUB à Fontainebleau, située au 5 avenue du Touring Club, construite en 2019, Cette résidence est sécurisée avec vigik et double porte d'entrée sécurisée, dispose d' un ascenseur, à 5 minutes à pied de la gare de Fontainebleau/Avon. . Le F3 situé au quatrième et dernier étage, sans AUCUN TRAVAUX à prévoir , comme NEUF ! se compose d'une entrée avec placards, d'une pièce de vie de 12.50 m² orientée Nord Ouest face au jardin de la résidence, d'une cuisine aménagée et équipée de 6m², de deux chambres de 9.68m² et 11.42 m² côté jardin, d'une salle de bain et d'un wc indépendant. . Une place de parking de 19m², très large (4.95 m prof x 3.98 m de large ) en sous-sol complète ce bien. Le sous-sol dispose de caméras de surveillance. Un garage à vélos est disponible dans la résidence. . Le loyer était de 930 par mois CC soit 800 hors charges. . Chauffage gaz collectif avec réglage thermostatique dans chaque appartement, Double vitrage partout et fenêtres oscillo battant dans les chambres . . Les charges sont de 177 par mois soit 2124 par an comprenant l' eau froide, l'eau chaude, le chauffage, les charges ascenseur, l'entretien des parties communes deux fois par semaine, l'entretien des espaces vert, les frais de syndic. Foncier 1333 euros. . Les commerces (carrefour market, picard, boulangerie, la poste, banques, pharmacie), sont tous à proximités (3 minutes à pied) et du parc de Fontainebleau (entrée à 3 minutes du F2) et possibilité de rejoindre le centre-ville de Fontainebleau à 7 minutes en voiture. .
Honoraires à la charge du vendeur. Dans une copropriété de 60 lots. Procédure en cours : Fin de procédure en décembre 2026 pour problème de surfaçage du sous sol à refaire. Classe énergie C, Classe climat C Montant moyen estimé des dépenses annuelles d'énergie pour un usage standard, établi à partir des prix de l'énergie de l'année 2023 : entre 460.00 et 670.00 . Les informations sur les risques auxquels ce bien est exposé sont disponibles sur le site Géorisques : georisques.gouv.fr.
54.38 m²
4 947 €
13 m²
3
2
1
1 (séparé)
4 sur 4
177.00 € / mois
2019
Ouest
Nord
Oui
1
Oui (60 lots)
Consommations énergétiques
Logement économe
103
Logement énergivore (kWhEP/m2/an)
Émissions de gaz à effet de serre
Faible émission de GES
19
Forte émission de GES(kgeqCO2/m2/an)
Contact DLV Immo
Contacter gratuitement à l'aide du formulaire ci-dessous.