Honoraires à la charge de l'acquéreur (Prix hors honoraires : 122000 euros).
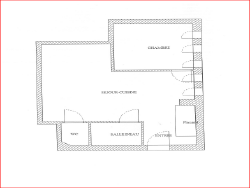
Appartement de type 2 lumineux de 31.31m2 carrez à proximité du bourg et de l'océan, comprenant une entrée avec placard, un salon séjour de plus de 21 m2 avec coin cuisine donnant sur un jardinet de 33 m2, une chambre, salle de douches, wc séparé. Place de stationnement privative. A proximité des commerces et à 1km de la plage des Demoiselles. Des travaux de rafraîchissement sont à prévoir dans ce logement. Profitable investment. Copropriété de 12 lots. Budget annuel syndic : 651,37 euros. Montant estimé des dépenses annuelles d'énergie pour un usage standard entre 620 et 890 euros (année de référence 2021). Prix de vente net vendeur : 122.000 euros. 5,74% TTC à la charge de l'acquéreur. 'Les informations sur les risques auxquels ce bien est exposé sont disponibles sur le site Géorisques http://www.georisques.gouv.fr'. - Annonce rédigée et publiée par un Agent Mandataire -
32 m²
4 031 €
21 m²
2
1
1
1
5.74 %
1956
Sud
Ouest
2
1
Oui (12 lots)
Consommations énergétiques
Logement économe
306
Logement énergivore (kWhEP/m2/an)
Émissions de gaz à effet de serre
Faible émission de GES
9
Forte émission de GES(kgeqCO2/m2/an)
Contact DESMARES Pierre-Olivier
Contacter gratuitement à l'aide du formulaire ci-dessous.