Front de Mer sur les hauteurs de TREBOUL, site exceptionnel
Douarnenez 29100
0
Honoraires à la charge du vendeur.
Très rare : Emplacement exceptionnel pour cette résidence de haut standing. Travaux en cours, livraison fin 2026. frais de notaire réduits. Seulement 16 logements dans un Parc en front de Mer sur les hauteurs de TREBOUL à 600m de la Plage des Sables Blancs.
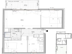
Spacieux T3 front de mer avec terrasse au 1er étage. traversant. cave et parking.
Grands volumes, terrasses d'hiver, piscine chauffée, venez découvrir votre futur logement dans un site d'exception.
Nous Consulter
Honoraires à la charge du vendeur. Non soumis au DPE. Les informations sur les risques auxquels ce bien est exposé sont disponibles sur le site Géorisques : georisques.gouv.fr.
Votre conseiller MON BIEN A LA MER : Gérant - .fr MON BIEN A LA MER Carte T CPI 2201 2018 000 025 040 RCP ACM IARD B1 7025278
67.06 m²
8 187 €
30 m²
3
2
1
1 (séparé)
1
1
Contact mon bien à la mer
Contacter gratuitement à l'aide du formulaire ci-dessous.