GAGNY 93220 Appartement F1 jardin privatif à vendre
Gagny 93220
0
Honoraires à la charge du vendeur.
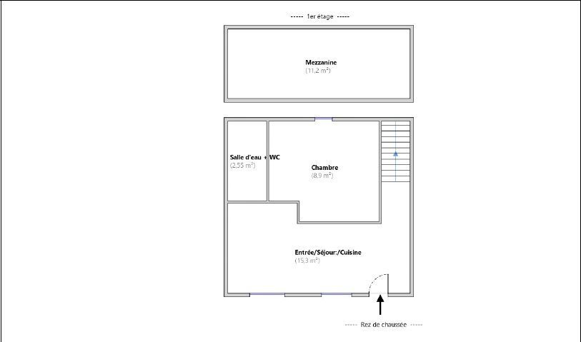
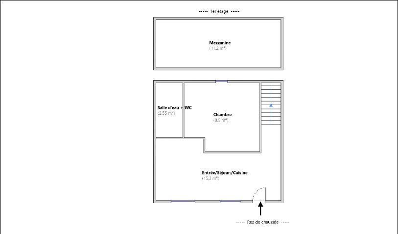
Le Cabinet CHAUVET & Cie vous propose proche de toutes commodités dans secteur pavillonnaire à 2min du Bus 604 un Appartement de type F1 pour une surface d'environ 22m², comprenant : Entrée, cuisine équipée et aménagée indépendante, pièce principale avec mezzanine sur jardin (38m² environ), salle d'eau avec WC. Chauffage individuel électrique. Vue sur jardin privatif. Calme. Charges faibles. Idéal pour investissement. CONTACT : 06 13 81 71 36. Mail : Nicolas@cabinetchauvet.com. A VOIR !
22.1 m²
5 882 €
38 m²
1
1
1
2001
Est
Oui
Contact Nicolas VIEIRA
Contacter gratuitement à l'aide du formulaire ci-dessous.