GAGNY 93220 Appartement F2 jardin privatif à vendre
Gagny 93220
0
Honoraires à la charge du vendeur.
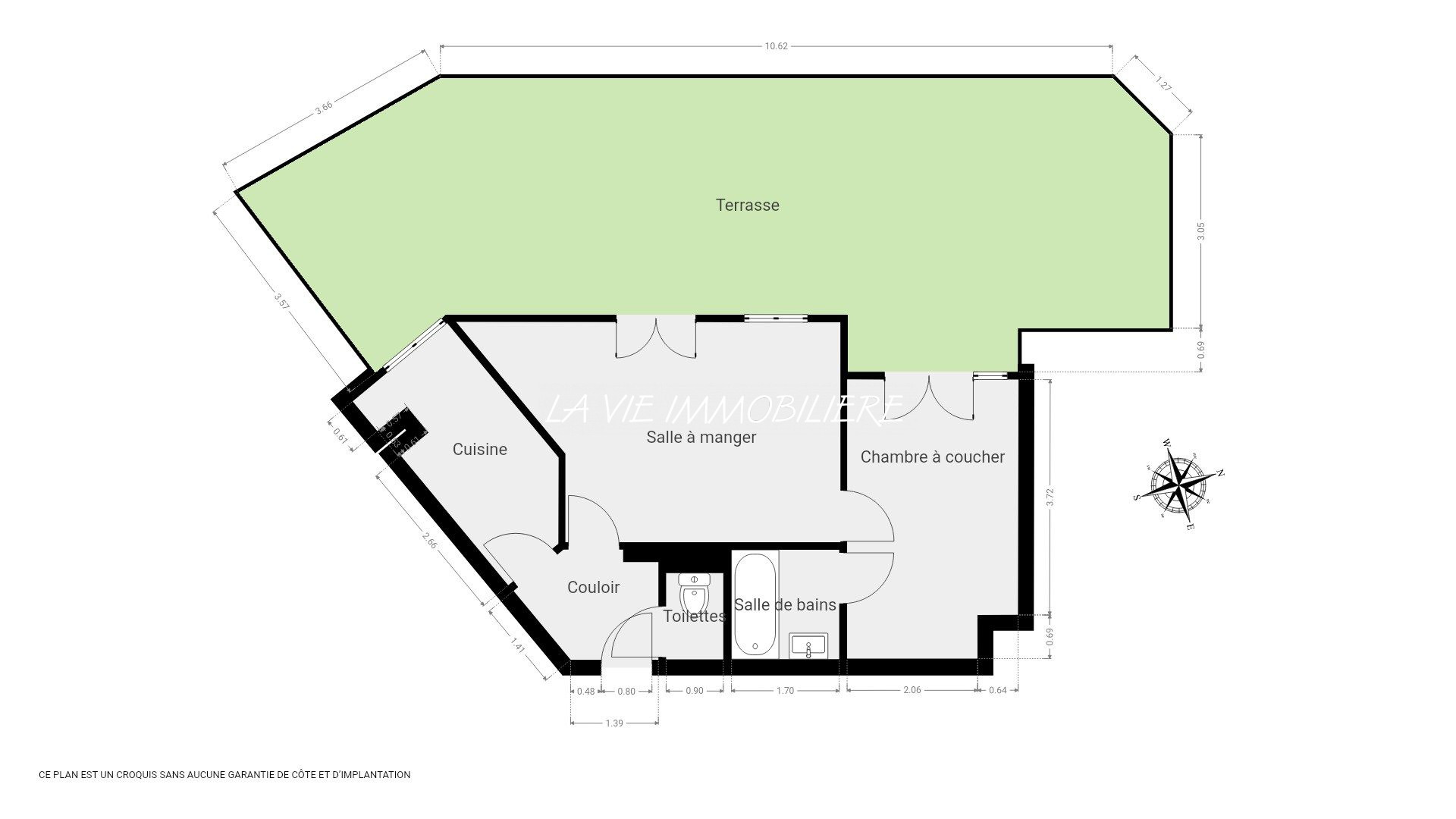
Le Cabinet CHAUVET & Cie vous propose proche de toutes commodités dans secteur pavillonnaire à 2min du Bus 604 un Appartement de type F2 pour une surface d'environ 54m² habitables, comprenant : Entrée, cuisine équipée et aménagée à l'américaine, séjour sur jardin privatif (38m² environ), une chambre, salle d'eau avec WC, mezzanine. Chauffage individuel électrique. Vue sur jardin privatif. Calme. Charges faibles. Idéal pour investissement. CONTACT : 06 13 81 71 36. Mail : Nicolas@cabinetchauvet.com. A VOIR !
54.45 m²
2 938 €
38 m²
2
1
1
1
Ouest
Consommations énergétiques
Logement économe
325
Logement énergivore (kWhEP/m2/an)
Émissions de gaz à effet de serre
Faible émission de GES
10
Forte émission de GES(kgeqCO2/m2/an)
Contact Nicolas VIEIRA
Contacter gratuitement à l'aide du formulaire ci-dessous.