GAGNY 93220 Appartement F2 jardin privatif mezzanine à vend
Gagny 93220
0
Honoraires à la charge du vendeur.
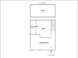
Le Cabinet CHAUVET & Cie vous propose proche de toutes commodités dans secteur pavillonnaire à 2min du Bus 604 un Appartement de type F2 pour une surface d'environ 38m² habitables, comprenant : Entrée, cuisine équipée et aménagée sur séjour donnant sur une cour de 36m² environ, une chambre, salle d'eau avec WC, mezzanine. Chauffage individuel électrique. Vue sur jardin privatif 36m². Calme. Charges faibles. Idéal pour investissement. CONTACT : 06 13 81 71 36. Mail : Nicolas@cabinetchauvet.com. A VOIR !
26.75 m²
5 607 €
36 m²
2
1
1
1
2001
Ouest
Contact Nicolas VIEIRA
Contacter gratuitement à l'aide du formulaire ci-dessous.