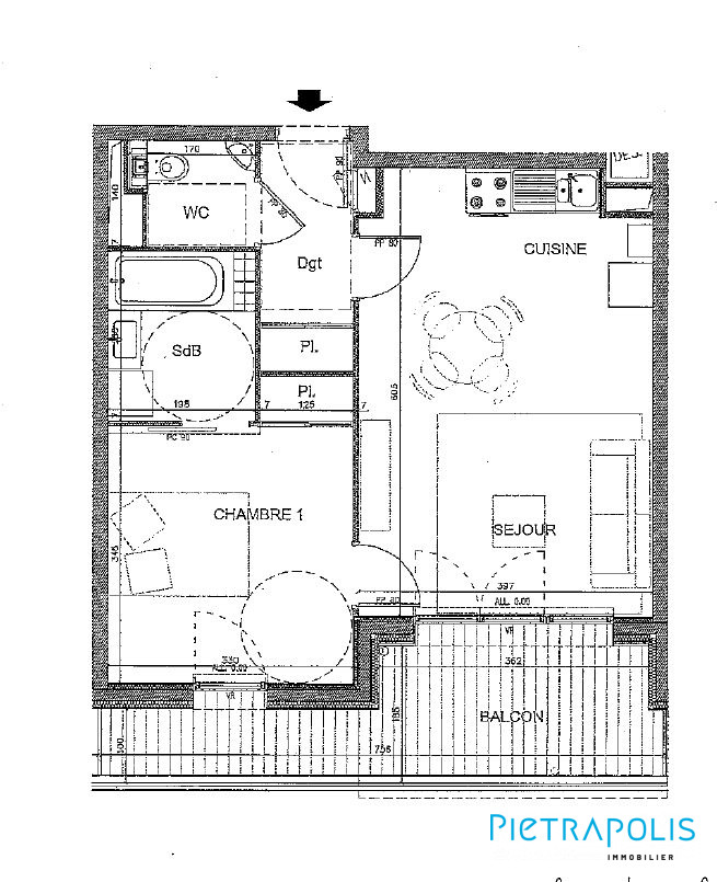
A quelques pas du centre-ville de Gex, au troisième étage d'un bâtiment de quatre, découvrez ce beau T2 de 47 m², en parfait état.
Situé au sein d'une résidence récente, il comprend une entrée avec placard, une cuisine équipée ouverte sur un lumineux séjour, une chambre et une salle de douche avec wc. Pour profiter de l'extérieur, un balcon exposé sud/ sud-ouest offre une vue superbe vue dégagée sur le Jura.
Ce bien comprend également deux places de parking privées, l'une en extérieur et l'autre en sous-sol.
Emplacement idéal à : - 10 minutes à pied des TPG : lignes 60 et 61 en direction de Genève, et ligne 818 reliant Gex à Nyon - 10 minutes à pied de l'espace Perdtemps, de la piscine municipale et du gymnase - 4 min en voiture des commodités : supermarché, pharmacie, boulangerie, restaurant, etc. - 7 min en voiture du Centre de Soin Immédiat (CESIM)
A découvrir sans tarder !
Honoraires à la charge du vendeur. Dans une copropriété de 147 lots. Aucune procédure n'est en cours. Classe énergie C, Classe climat C Montant estimé des dépenses annuelles d'énergie pour un usage standard : entre 643.00 et 869.00 sur les années 2021, 2022 et 2023 (abonnements compris). Les informations sur les risques auxquels ce bien est exposé sont disponibles sur le site Géorisques : georisques.gouv.fr.