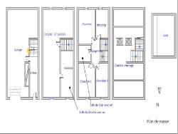
Venez découvrir cette charmante Maison de Village de 6 pièces, située en plein coeur du Village de Gonfaron. A proximité de toutes commodités. D'une superficie de 214 m2 en surface totale, (113 m2 loi carrez) elle est composée : En sous-sol : d'une grande cave de 20 m2 au charme authentique Au rez-de-chaussée : d'une entrée donnant sur un grand garage de 50 m2 avec portail électrique Au 1er étage : d'un salon/salle à manger/cuisine de 47 m2, d'un cellier avec salle d'eau de 7 m2 Au 2e étage : de 4 chambres (11 m2, 10 m2, 15 m2, 12 m2) et d'une salle de bain avec toilette. Au 3e étage : des combles aménagés de 35 m2. La possibilité d'en faire un toit terrasse. Taxe foncière : 1519 euros Les informations sur les risques auxquels ce bien est exposé sont disponibles sur le site Géorisques : www.georisques.gouv.fr Cette annonce vous est proposée par DEVEILLE Margot - - NoRSAC: , Enregistré à de
Maison de village
140 m²
1 736 €
47 m²
6
4
1
1
2
1900
Sud
Nord
1
Consommations énergétiques
Logement économe
167
Logement énergivore (kWhEP/m2/an)
Émissions de gaz à effet de serre
Faible émission de GES
6
Forte émission de GES(kgeqCO2/m2/an)
Contact DEVEILLE
Contacter gratuitement à l'aide du formulaire ci-dessous.