GORBIO - Maison de village individuelle 4 pièces avec 2 terr
Gorbio 06500
0
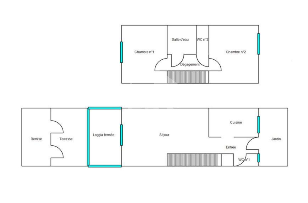
Dans le village classé de Gorbio, une belle maison de village individuelle de caractère et atypique 2 étages avec son histoire. Composée de 4 pièces pour une surface habitable de 71,28 m2 (hors écurie). La maison est équipée de la climatisation dans chaque pièce, de fenêtres et porte à double vitrage neuves, de la fibre. Toit (+ isolation) remplacé il y a 3 ans. La maison se compose:
d' une ancienne écurie de 25m2 accessible de plein pied, depuis la rue où par un escalier intérieur depuis le salon. D'une hauteur de 4 m sous plafond elle dispose d'une fenêtre, de l'électricité et de l'eau. Cette écurie pouvant être aménagée après travaux en appartement ou pièces supplémentaires. au 1er niveau: une terrasse fleurie extérieure de 16m2; une cuisine américaine équipée ouverte sur le salon-salle à manger avec cheminée (insert) de 35m2; une chambre parentale avec WC et un lavabo - 9m2; au 2ème niveau: une salle d'eau/WC avec fenêtre, 2 chambres dont une avec accès par escalier intérieur menant à un toit-terrasse de 18m2, offrant une magnifique vue panoramique sur la mer, les montagnes et le village;
Aucun travaux à prévoir, la maison est équipée de la climatisation réversible Renseignements et visites au 06 09 17 25 24 Bien soumis au statut de la copropriété / pas de charges / honoraires charge vendeur
71.28 m²
5 121 €
35 m²
4
3
2
2
1800
Sud
Ouest
Oui
2
Oui
Oui
Oui
Oui
Consommations énergétiques
Logement économe
246
Logement énergivore (kWhEP/m2/an)
Émissions de gaz à effet de serre
Faible émission de GES
7
Forte émission de GES(kgeqCO2/m2/an)
Contact PALMER Prisca
Contacter gratuitement à l'aide du formulaire ci-dessous.