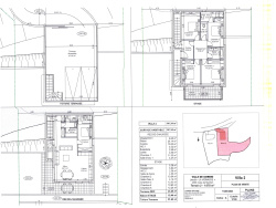
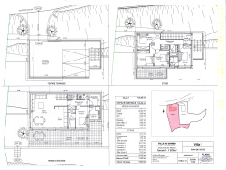
Gorbio-'La Vignasse', Villas de 136 m2 et 138 m2, 5 chambres, sur terrain de 1070 m2. La SAS Villas de Gorbio réalisent pour vous 2 villas à l'architecture résolument contemporaine, idéalement situées à proximité de Menton et Monaco, à 40 minutes de l'aéroport de Nice. Chaque villa bénéficie au moins de 136 m2 et de 138 m2 habitables, sur un terrain de 1070 m2 complanté d'essences méridionales. Vous disposerez aussi de larges terrasses, de 2 parkings privés sur le toit. Chaque villa se compose en rez de jardind'un bel espace à vivre,avec séjour, salon cuisine ouverte et 1 chambre , et au 1er étage d'un espace nuit de 4 chambres. Environnement : jeter l'ancre à Gorbio c'est découvrir un charmant petit village médiéval,à l'écart de l'agitation citadine. A partir de 790 000 EUR (villa de 136 m2) frais d'agence inclus de 5%, (honoraires à charge vendeur) Pour découvrir les Villas de Gorbio contactez nous au + 33 7 52 64 46 40 ou contact@elizimmo.com
Villa
136 m²
5 360 €
1070 m²
6
5
Contact Lise FRANCE-LISE
Contacter gratuitement à l'aide du formulaire ci-dessous.