Forom Immobilier vous propose cet appartement T2 d'une surface d'environ 44 m² situé au 1er étage sur 2, avec ascenseur, dans une résidence BBC (basse consommation) de 2012 sur la commune de Grabels, à proximité du CHU St Eloi, secteur Hôpitaux Facultés de Montpellier.
Actuellement loué 702 CC (618 HC + 73 de charges locatives + 11 taxe ordure ménagère), rentabilité brute 6,77% !
Locataire en place depuis plus de 9 ans, date de fin de bail 19/08/2027.
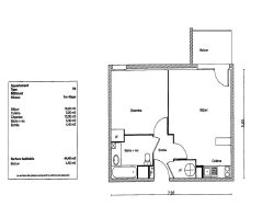
Ce bien se compose de la façon suivante : un salon donnant sur le balcon, une cuisine équipée, une chambre avec placard, une salle de bains avec WC, un balcon et une place de parking.
Informations clés :
Chauffage individuel électrique
Eau chaude chauffe-eau thermodynamique (panneaux solaires) compris dans les charges
Diagnostic de Performance Énergétique : A
Montant des charges annuelles : 1 066
Taxe Foncière 2025 : 985
Honoraires charges vendeur.
Honoraires à la charge du vendeur. Dans une copropriété de 86 lots. Aucune procédure n'est en cours. Classe énergie A, Classe climat A Montant estimé des dépenses annuelles d'énergie pour un usage standard : entre 210.00 et 330.00 sur les années 2021, 2022 et 2023 (abonnements compris). Les informations sur les risques auxquels ce bien est exposé sont disponibles sur le site Géorisques : georisques.gouv.fr.
44.4 m²
2 804 €
5 m²
2
1
1
1 (séparé)
1 sur 2
88.90 € / mois
2012
Ouest
Nord
1 (5 m²)
Oui
1
Oui
Oui (86 lots)
Consommations énergétiques
Logement économe
41
Logement énergivore (kWhEP/m2/an)
Émissions de gaz à effet de serre
Faible émission de GES
1
Forte émission de GES(kgeqCO2/m2/an)
Contact Forom® Immobilier
Contacter gratuitement à l'aide du formulaire ci-dessous.