Grand 5 pièces Résidence du Lac, avec place de parking et cave
Mantes-la-Jolie 78200
0
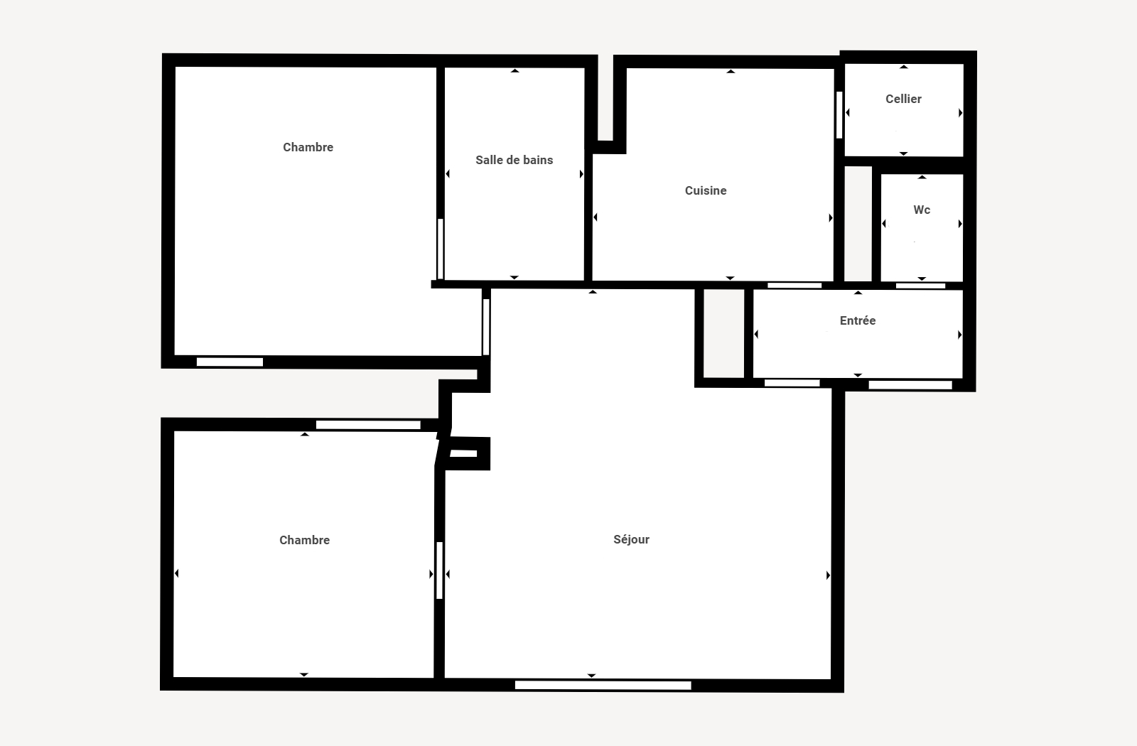
Dans la résidence du Lac, vous trouverez cet appartement très lumineux au troisième étage sans vis à vis, vu dégagée.
Prévoir quelques travaux de remise en état, électricité, décoration...
Ce bien vous propose de beaux volumes avec une entrée, un salon, séjour, une cuisine fermée, quatre chambres, dont deux avec des placards de rangements, un cellier et un débarras pouvant se transformer en salle de douche afin d'accueillir une seconde pièce d'eau, ou encore en dressing.
Un bon DPE nous classe cet appartement en D.
Une place de parking privée et une cave viennent compléter ce bien.
Une visite s'impose !!
87 m²
1 241 €
5
4
1
1
3 sur 10
Séparée
Oui
Oui
Consommations énergétiques
Logement économe
209
Logement énergivore (kWhEP/m2/an)
Émissions de gaz à effet de serre
Faible émission de GES
18
Forte émission de GES(kgeqCO2/m2/an)
Contact Sandra VALLINI
Contacter gratuitement à l'aide du formulaire ci-dessous.