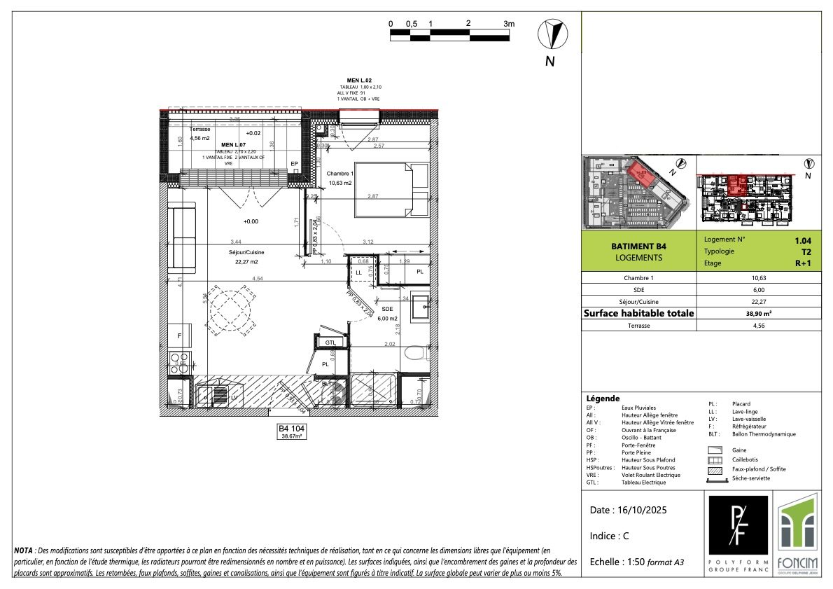
Votre agence CASA IMMO, agence immobilière à Caen, vous propose à la vente, à Pont L'Eveque, à deux pas de Deauville, un vaste appartement 2 pièces lumineux niché au coeur d'une résidence sécurisée et verdoyante, protégée des regards par un bel écrin végétal.
en font un bien rare, pensé pour conjuguer confort moderne et sérénité. Dans le charme authentique d'une commune normande au riche patrimoine, profitez d'un cadre de vie harmonieux où nature, histoire et qualité de vie se rencontrent.
Opportunité à saisir, parfaite pour résidence principale ou investissement locatif.
Contactez dès maintenant votre agence CASA pour organiser une présentation.
Honoraires à la charge du vendeur. Dans une copropriété de 50 lots. Aucune procédure n'est en cours. Non soumis au DPE. Les informations sur les risques auxquels ce bien est exposé sont disponibles sur le site Géorisques : georisques.gouv.fr.
54 m²
3 352 €
30.00 m²
2
1
1
1
1
2025
Ouest
Oui
1
Oui
Oui
Oui (50 lots)
Contact CASA IMMO
Contacter gratuitement à l'aide du formulaire ci-dessous.