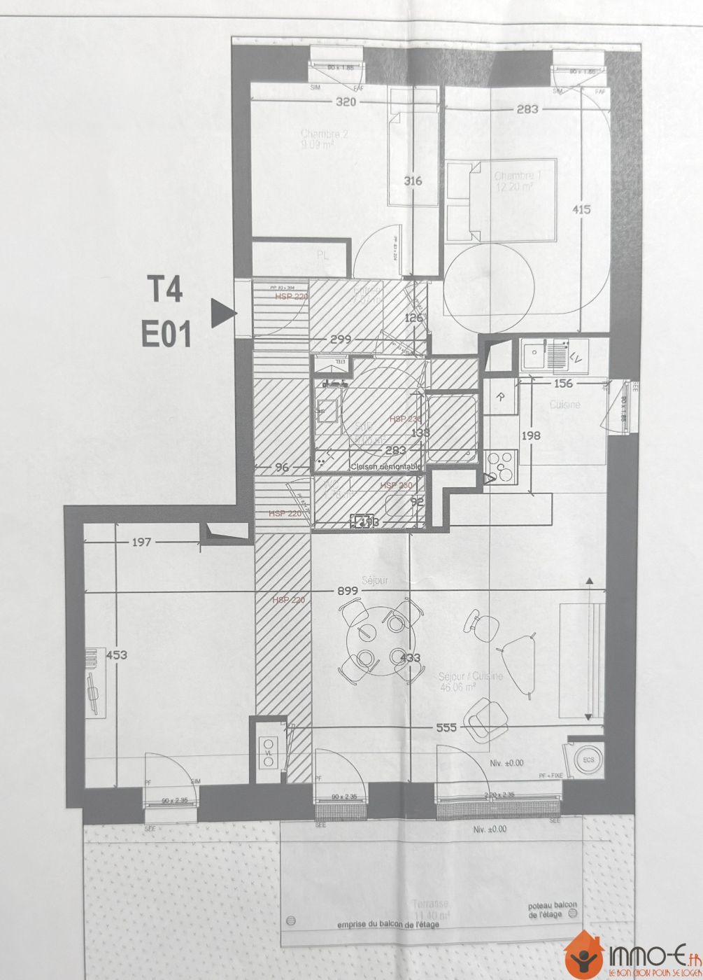
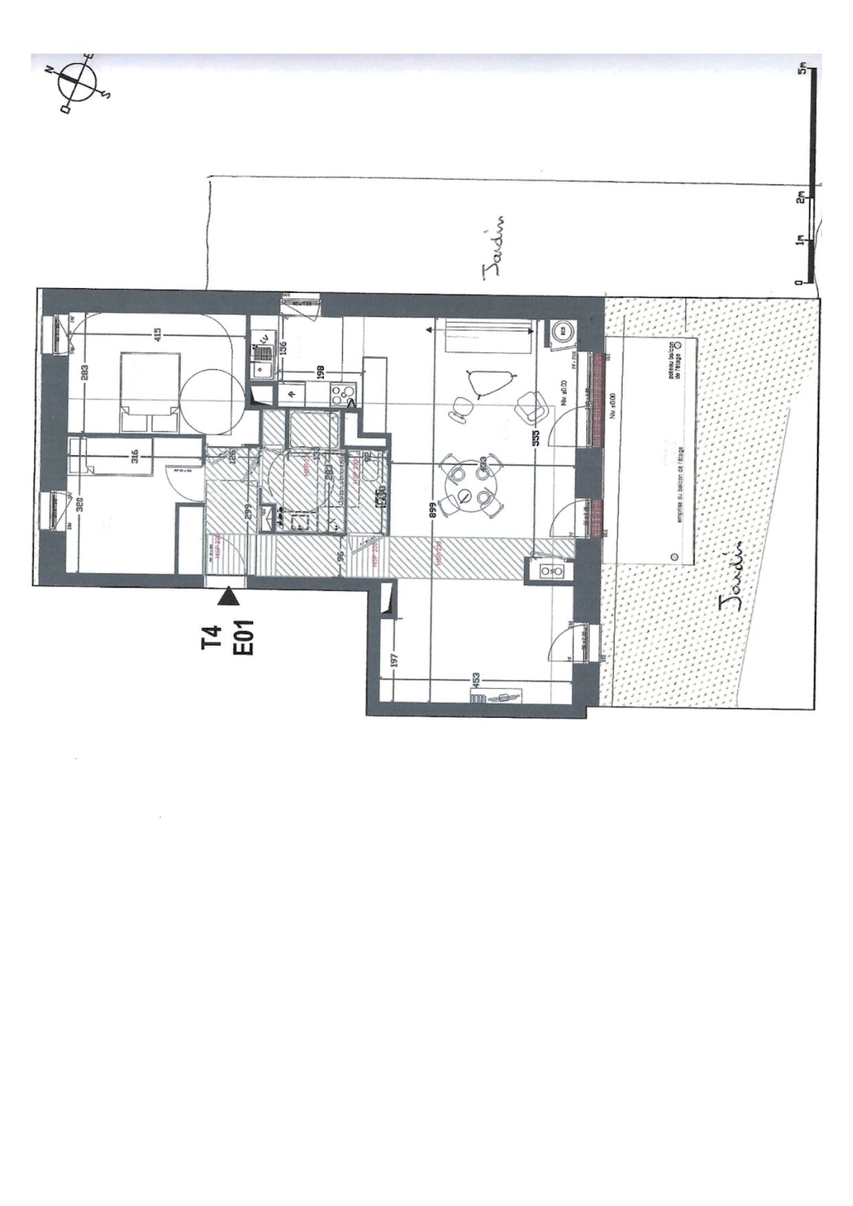
Appartement de type F3 en rez de jardin pour une superficie de 82 m2 . avec Terrain de 150 m2 environ et sa terrasse 2 Places de parking sécurisées.
Les plus : +++
Espace de vie de 46 m2 ( salon / cuisine) 1 ére Main ( jamais habité ) Ville du Val d'Europe Agglomération Possibilité d'une 3éme chambre Garantie décennale Fenetres à triple vitrage Ventilation double flux thermodynamique avec filtre à particules Panneaux solaires Jardins privatifs pour les logements du rez-de-chaussée Locaux vélos et poussettes Parking sous-sol Portier vidéophonie Belle Terrasse en bois
Plus de détails nous contacter au 0668220969
copropriété de standing de 83 logements
.
. Les informations sur les risques auxquels ce bien est exposé sont disponibles sur le site Géorisques : www.georisques.gouv.fr
82 m²
4 268 €
46 m²
148 m²
3
2
1
1
Sud
2
Contact Emmanuel CHAUVEL - IMMO E
Contacter gratuitement à l'aide du formulaire ci-dessous.