Honoraires à la charge de l'acquéreur (Prix hors honoraires : 0 euros).
Les charges de location sont prévisionnelles mensuelles avec régularisation annuelle.
Vu LAM vous propose plusieurs locaux industriels / activités à Malesherbes (45, Loiret) entre 2391 et 11875m².
Malesherbes est une ville française située dans le département du Loiret et la région du Centre-Val de Loire. La commune de Malesherbes fait partie de la Communauté de communes du Pithiverais-Gâtinais.
Le site dispose d'un levier de 78.000 habitants dans un rayon de 26 kms.
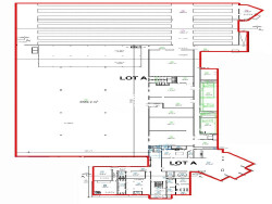
Surface totale : 29.746 m² divisibles Surface terrain : 58.813 m² Hauteur selon lots de 4m50 à 9m Dalle béton haute résistance (5T/m² et plus) Charpente béton / métallique Porte plain-pied et portes à quais Travaux à réaliser
Lot A : 9.600,8 m² (celui de l'annonce) 2.240.80 m² de stockage 5.265,60 m² d'activité 2.094,40 m² de bureau/show-room Lot B : 11.875 m²2.342 m² de stockage/picking 9.533 m² d'activités industrielles Lot C : 2.391 m² de stockage, picking ou d'activités industrielles Lot D : 3.840m² de stockage, picking ou d'activités industrielles
A partir de 29 HTHC/m²/an.
Merci de présenter votre projet sur vu.lam@reseau-brokers.com. Je vous y répondrai avec le dossier complet.
RESEAU BROKERS® est le premier cabinet immobilier d'entreprise structuré en réseau de mandataires. Nous maillons avec notre équipe de 100 Brokers une grande partie du territoire national pour accompagner nos entreprises clientes dans leurs recherches de commerces, bureaux, locaux d'activités, immeubles et fonciers. www.reseau-brokers.com
Provision sur charges 6 800 HT/mois, régularisation annuelle. DPE en cours. Les informations sur les risques auxquels ce bien est exposé sont disponibles sur le site Géorisques : georisques.gouv.fr. Ce bien vous est proposé par un agent commercial (Entreprise individuelle).