GRAND STUDIO BAS MONTREUIL EN BORDURE DE VINCENNES
Montreuil 93100
0
Honoraires à la charge de l'acquéreur (Prix hors honoraires : 200000 euros).
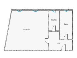
**LE VESTIAIRE DE L'IMMOBILIER** a le plaisir de vous proposer en exclusivité ce grand studio de 32m² au dernier étage facilement transformable en 2 pièces, actuellement loué en bail classique jusqu'à septembre 2027 pour 840 CC. Il se compose d'une entrée distribuant un double séjour de 22.28m², d'une cuisine séparé ainsi qu'une salle d'eau avec WC Une cave de 3m² complète ce bien Situé dans le quartier de Bas-Montreuil SOLIDARITE CARNOT, le studio bénéficie d'un emplacement idéal à proximité de toutes les commodités. Il se trouve à seulement 10MIN à pied de la station de métro Croix de Chavaux (ligne 9). À la même distance, L1 Château de Vincennes. Ce bien sera parfaitement adapté pour une première acquisition ou un investissement locatif. N'attendez plus, contactez-nous dès maintenant pour organiser votre visite !
Honoraires inclus de 5% TTC à la charge de l'acquéreur. Prix hors honoraires 200 000 . Dans une copropriété de 59 lots. Quote-part moyenne du budget prévisionnel 1 920 /an. Aucune procédure n'est en cours. Classe énergie D, Classe climat C Montant estimé des dépenses annuelles d'énergie pour un usage standard : entre 990.00 et 1390.00 sur les années 2021, 2022 et 2023 (abonnements compris). Les informations sur les risques auxquels ce bien est exposé sont disponibles sur le site Géorisques : georisques.gouv.fr.
Votre conseiller Le Vestiaire de l'Immobilier ® : Constantin TEILLET Agent commercial (Entreprise individuelle)