Honoraires à la charge de l'acquéreur (Prix hors honoraires : 85000 euros).
Grand studio 30m2 + parking privatif, idéal étudiant, jeune actif ou investisseur.
Votre réseau LYSI Immobilier est heureux de vous présenter cette nouvelle opportunité en exclusivité à Arras
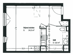
Ce studio de qualité et bien agencé vous offre de belles prestations : . Bel espace de vie de 25 m2 avec 2 belles fenêtres double vitrage offrant une très belle luminosité dans l'appartement . Véritable parquet dans la pièce de vie . Une cuisine semi-équipée (plaque électrique, four, hotte, et de nombreux rangements) . Salle de bain / toilettes modernes avec meuble évier, baignoire, séche serviette et un beau volume pour rangements . Interphone et thermostat d'ambiance pour le confort . Ballon d'eau chaude privatif et chauffage électrique dans l'appartement . Place de parking privative et numérotée au pied de la résidence . Appartement très bien isolé (DPE C) et orienté OUEST pour soleil toute l'après-midi + soirée.
DPE C: 147 GES A : 4 Bien en copropritété, pas de procédures en cours
Résidence calme, bien entretenue, parties communes très propres. Appartement encore sous garantrie décennale jusque 2027. Local à vélos et parking visiteurs dans la résidence. Quartier résidentiel, idéalement situé, très recherché, proche de toutes commodités : Gare d'Arras à 750m Université d'Artois à 850m Grand Place à 950m
--------
Vous souhaitez investir ? Cet appartement est idéal pour un investissement locatif, nu ou meublé Loyer possible 500 EUR / mois Rentabilité brute 5,6 % Aucun travaux à prévoir Bon emplacement, peu de changement de locataire, tout pour réussir son investissement !
Demandez conseil à votre conseiller LYSI, il saura vous expliquer et vous accompagner dans votre projet immobilier locatif.
--------
Prix net vendeur : 85 000 EUR Honoraires : 6 300 EUR charges acquéreur Prix FAI : 91 300 EUR Taxe foncière : 836 EUR Charges annuelles : 700 EUR
Mandat exclusif no195 du 19/09/2025 Mandataire LYSI Immobilier : Sébastien DAMAGEUX SAS LYSI IMMOBILIER , SIRET 92135851100019 - 130 chemin de la Boissonnade 82000 Montauban - TVA Intracommunautaire FR17921358511 code APE 68.31Z -no Carte T : CPI82012022000000013 CCI Tarn et Garonne
30.3 m²
3 013 €
24 m²
1
1
1
2 sur 3
7.41 %
21/01/2026
60 € / mois
2017
Ouest
1
Oui
Oui
Consommations énergétiques
Logement économe
147
Logement énergivore (kWhEP/m2/an)
Émissions de gaz à effet de serre
Faible émission de GES
4
Forte émission de GES(kgeqCO2/m2/an)
Contact DAMAGEUX SEBASTIEN
Contacter gratuitement à l'aide du formulaire ci-dessous.