Grand T1 de 36 m2 avec parking et terrasse secteur NEOMA / F
Reims 51100
0
Les charges de location sont forfaitaires mensuelles.
La part des honoraires pour la réalisation de létat des lieux de ce bien est de 63 euros.
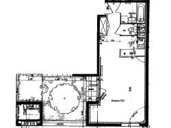
Référence L2439. Grand T1 de 36 m2 en rez-de-chaussée d'une résidence récente. Proche de l'école de commerce Neoma et de l'université (faculté des lettres et sciences humaines). Terrasse commune et place de parking. Tramway à proximité. Sol lino. entrée, séjour, kitchenette équipée, salle de bains, WC. Loyer : 420.00 euros /Mois - Charges : 25.00 euros /Mois - Taxe d'ordures ménagères 9.00 euros /Mois Frais d'agence : 378 euros - Dépot de garantie : 420 euros Chauffage individuel électrique Disponible immédiatemment. Retrouvez toutes nos offres sur notre site www.immobilier51.com
36 m²
1
1
378 %
05/02/2026
25 € / mois
1995
Consommations énergétiques
Logement économe
280
Logement énergivore (kWhEP/m2/an)
Émissions de gaz à effet de serre
Faible émission de GES
8
Forte émission de GES(kgeqCO2/m2/an)
Contact Marcille Immobilier
Contacter gratuitement à l'aide du formulaire ci-dessous.