Honoraires à la charge de l'acquéreur (Prix hors honoraires : 170000 euros).
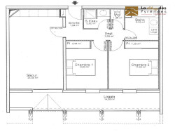
La Clé des Pyrénées - Immobilier vous propose cet appartement T3 de 61 m² (loi Carrez), situé à Vielle-Aure, à quelques minutes de la station de ski de Saint-Lary-Soulan. Ce bien rare combine confort, praticité et investissement grâce à son bail locatif avec le Groupe LAGRANGE. Situé au 2? étage d'une résidence récente avec ascenseur, cet appartement se compose de: - Un séjour de 23 m² avec cuisine équipée. - Deux chambres de 9 m² et 10 m². - Deux salles de bains, idéal pour les séjours en famille. - Un balcon de 14 m² pour profiter de l'extérieur. - Un garage privatif, essentiel pour un stationnement sécurisé. Sous bail commercial avec le Groupe LAGRANGE, cet appartement offre plusieurs avantages : des revenus locatifs garantis (7 100 HT/an, versés semestriellement) et des charges d'électricité prises en charge par le gestionnaire, même lors de vos séjours. Le futur propriétaire pourra profiter du logement durant 6 semaines par an, réparties entre basse et moyenne saison. Vielle-Aure est idéalement située à proximité de Saint-Lary-Soulan, offrant un accès facile aux 100 km de pistes skiables en hiver, et de nombreuses activités en été comme la randonnée, le VTT, le canyoning ou encore le parapente. Baignades dans les lacs ou détente aux thermes de Saint-Lary sont également une option intéressante.
Ne manquez pas cette occasion. Contactez-nous pour plus d'informations ou pour organiser une visite.
Les informations sur les risques auxquels ce bien est exposé sont disponibles sur le site Géorisques : www.georisques.gouv.fr.
Honoraires inclus de 5.29% TTC à la charge de l'acquéreur. Prix hors honoraires 170 000 . Dans une copropriété de 90 lots. Quote-part moyenne du budget prévisionnel 1 200 /an. Aucune procédure n'est en cours. Classe énergie D, Classe climat B Montant moyen estimé des dépenses annuelles d'énergie pour un usage standard, établi à partir des prix de l'énergie de l'année 2021 : entre 970.00 et 1370.00 . Les informations sur les risques auxquels ce bien est exposé sont disponibles sur le site Géorisques : georisques.gouv.fr.
Carte pro. CPI 6501 2024 000 000 010 Mention Carte T AC ADC 6501 2025 000 000 001