Goodshowcase
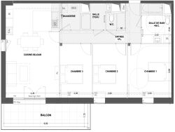
Vente appartement 4 pièces

Vente appartement 4 pièces
375 000 €

Contact mon bien à la mer

Contacter gratuitement à l'aide du formulaire ci-dessous.


Afficher le téléphone


Annonces similaires

Vente appartement

Cancale 35260 - 0

395 000 €

...A quelques pas des commerces, des établissements scolaires et des arrêts de bus, ce bien...

Voir l'annonce

Vente appartement

Cancale 35260 - 0

345 000 €

...En quoi cela consiste ?L'ancien manoir Hamon Vaujoyeux de Cancale sera réhabilité...

Voir l'annonce

Vente appartement

Cancale 35260 - 0

420 000 €

...Composition : séjour 31 m², cuisine, 3 chambres, salle de bains, salle d'eau, WC séparé,...

Voir l'annonce

Vente appartement

Cancale 35260 - 0

399 000 €

...Dernières finitions en cours pour cet appartement entièrement rénové situé en centre-ville de...

Voir l'annonce

Vente appartement

Cancale 35260 - 0

349 000 €

...Dernières finitions en cours pour cet appartement entièrement rénové situé en centre-ville de...

Voir l'annonce