L'Agence MON BIEN A LA MER, Spécialiste de l'immo neuf en Bord de Mer, vous présente :
TRAVAUX EN COURS - Livraison juin 2026 : Résidence au sud de LA ROCHELLE, axe Emile Normandin, entre le marais du Tasdon, plage d'Aytré et Port des Minimes, tous commerces et transports à proximité. Nombreuses pistes cyclables permettant d'accéder : Vieux Port 8min, Marais du Tasdon 5 min, gare TGV 2h30 Paris 7 min, 8 min campus universitaire, 6 min Plage du Roux. Ascenseur, Frais de notaire réduits.
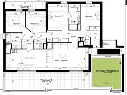
Grand T5 avec terrasses 33+6+22m2 comprenant : - Séjour 43,67m2 + cellier - Espace nuit : 4 chambres, une salle d'eau, une salle de bains, deux wcs séparés, entrée, placards, - Double parking sous sol inclus
Nous Consulter
Honoraires à la charge du vendeur. Non soumis au DPE. Les informations sur les risques auxquels ce bien est exposé sont disponibles sur le site Géorisques : georisques.gouv.fr.
Votre conseiller MON BIEN A LA MER : Gérant - .fr MON BIEN A LA MER Carte T CPI 2201 2018 000 025 040 RCP ACM IARD B1 7025278
121.62 m²
5 180 €
44 m²
5
4
1
1
2
3 sur 5
Oui
1
2
Oui
Contact mon bien à la mer
Contacter gratuitement à l'aide du formulaire ci-dessous.