Villeurbanne Dernier étage, lumière traversante et toit-terrasse arboré
À proximité immédiate de la Doua, dans un secteur vivant et pratique du Nord de Villeurbanne, découvrez ce magnifique appartement familial de 116 m², perché au dernier étage d'une résidence récente aux prestations soignées. Un emplacement idéal, à deux pas des commerces du quotidien, des écoles, des lignes de bus et à quelques minutes du tramway, tout en bénéficiant d'un accès rapide au périphérique pour rejoindre Lyon et l'est de l'agglomération.
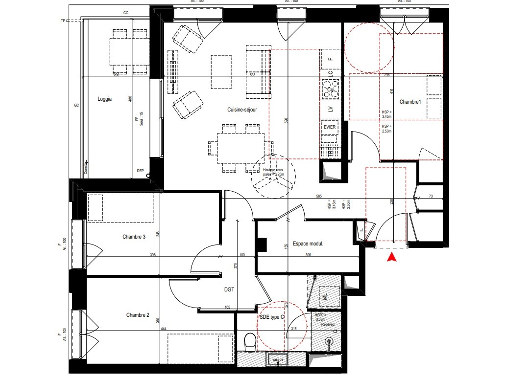
La pièce de vie de plus de 43 m², traversante Est Sud, profite d'une lumière remarquable grâce à ses grandes ouvertures plein Sud. Elle s'ouvre sur une terrasse arborée de 55 m², sans vis-à-vis, offrant une vue dégagée sur le Nord de Lyon et un véritable espace extérieur à vivre.
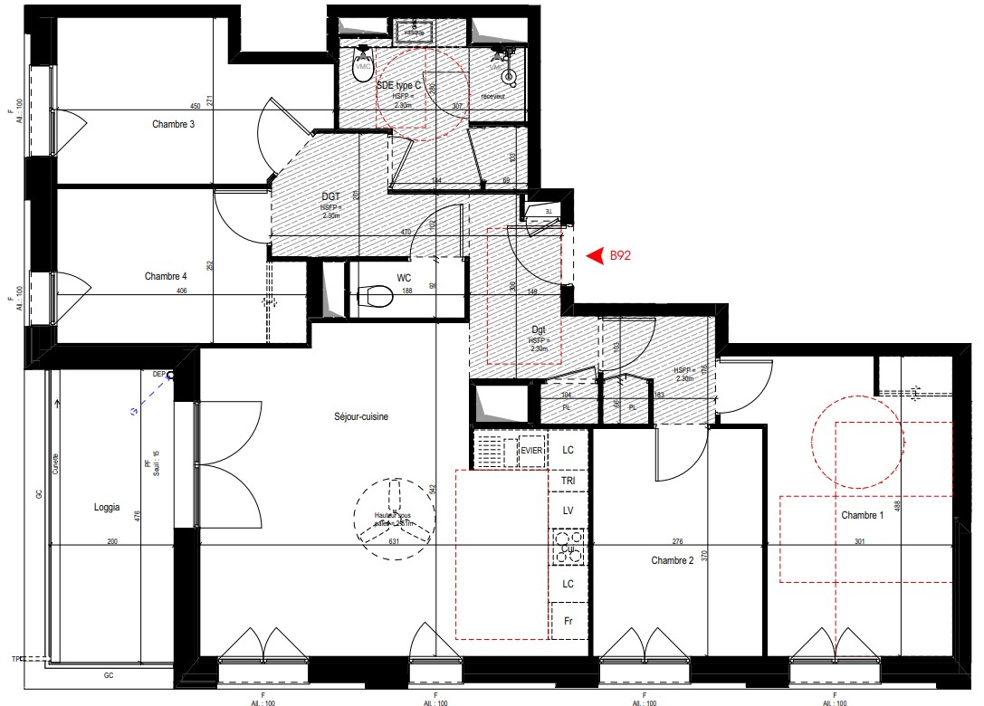
Côté nuit, l'appartement propose quatre chambres confortables (de 10,5 à 13,3 m²), dont une suite parentale avec salle d'eau privative. Une salle de bains familiale, deux WC séparés, une buanderie, un cagibi et un agencement parfaitement optimisé complètent ce bien pensé pour la vie de famille. Le parquet renforce la chaleur de l'ensemble et le chauffage individuel au gaz garantit un confort maîtrisé.
La résidence récente répond aux exigences thermiques actuelles, pour une isolation performante et un confort au quotidien.
Prix : 524 000 Honoraires d'agence inclus à la charge du vendeur
Une place de stationnement en sous-sol (15.000 en sus du prix de vente Estimation frais de notaire : env. 11 000 Charges de copropriété : 175 / mois
Un toit-terrasse rare, une surface généreuse, une lumière exceptionnelle et un quartier pratique et connecté : un bien idéal pour une famille en quête d'espace et de confort. Contactez-nous dès maintenant pour une visite.
Honoraires à la charge du vendeur. Dans une copropriété de 30 lots. Aucune procédure n'est en cours. Classe énergie C, Classe climat C Montant estimé des dépenses annuelles d'énergie pour un usage standard : entre 1042.00 et 1409.00 sur les années 2021, 2022 et 2023 (abonnements compris). Les informations sur les risques auxquels ce bien est exposé sont disponibles sur le site Géorisques : georisques.gouv.fr.
Votre conseiller ACCANO : Sophie Liminana Agent commercial (Entreprise individuelle)
116.14 m²
4 512 €
7 m²
5
4
1
1
2 (séparés)
7 sur 7
2024
Sud
Ouest
1 (7 m²)
Oui
1
1
Oui (30 lots)
Consommations énergétiques
Logement économe
79
Logement énergivore (kWhEP/m2/an)
Émissions de gaz à effet de serre
Faible émission de GES
16
Forte émission de GES(kgeqCO2/m2/an)
Contact Sophie Liminana
Contacter gratuitement à l'aide du formulaire ci-dessous.