Résidence en cours de travaux à AVRILLE pour fin 2026 : Seulement 15 minutes de l'hypercentre d'Angers grâce au tramway accessible à 300 mètres. Commodités à pied. Le programme propose un habitat diversifié, allant du studio au 5 pièces, ainsi que des maisons avec jardins privatifs. Certifié NF Habitat, ce programme allie confort urbain et douceur de vivre avec une omniprésence du végétal.
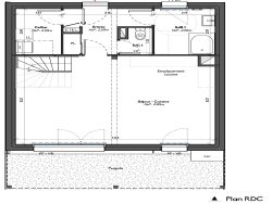
Grande Maison de ville 97m2 T5 exposée sud comprenant : - Au 1er niveau : Séjour 32,28m2, grand cellier, salle d'eau douche à l'italienne, wc séparé, placard - A l'étage : 4 Chambres 10,3-10,25-9,21-9,2m2, salle de bains baignoire double vasque, wc séparé - Jardin 90m2 - Stationnement inclus.
Nous consulter.
Honoraires à la charge du vendeur. Non soumis au DPE. Les informations sur les risques auxquels ce bien est exposé sont disponibles sur le site Géorisques : georisques.gouv.fr.
Votre conseiller MON BIEN A LA MER : Gérant - .fr MON BIEN A LA MER Carte T CPI 2201 2018 000 025 040 RCP ACM IARD B1 7025278
Maison contemporaine
97.12 m²
3 501 €
32 m²
5
4
1
1
2 (séparés)
1
Oui
Contact mon bien à la mer
Contacter gratuitement à l'aide du formulaire ci-dessous.