Grande maison en pierre sous ardoise - St Nicolas du Pélem
Saint-Nicolas-du-Pélem 22480
0
Honoraires à la charge du vendeur.
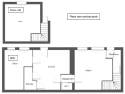
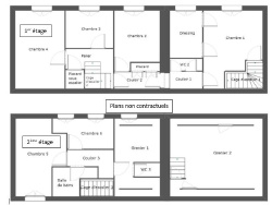
REF : 103 Située au coeur du quartier historique de Saint Nicolas du Pélem, cette grande maison semi-mitoyenne de 180 m2 habitable, sous ardoises offre de multiples possibilités.Idéale pour une grande famille ou comme investissement pour un rendement locatif. Elle se compose de deux logements réunis en un seul, répartis sur trois niveaux, avec deux greniers, une cave et un petit local à vélos. Au rez-de-chaussée :- Cuisine- Séjour- Salle à manger- WC- Dégagement- Réserve- Chaufferie Au 1er étage :- Palier avec deux couloirs- Quatre chambres, dont une suite parentale avec salle d'eau et une chambre avec dressing/bureau Au 2ème étage :- Couloir menant à deux chambres- Salle de bain- WC- Deux greniers Au sous-sol :- une cave À deux pas une dépendance vient compléter cette propriété, comprenant un jardin clos de 500 m2 constructible, agrémenté d'arbres fruitiers.Vous y trouverez également deux boxes/garages et une verrière. Rénovation complète à prévoir. Proche de toutes commodités (écoles, médecin, poste, centre commercial... ) et à moins d'une heure des plages bretonnes. Cette maison est une belle opportunité à saisir. N'hésitez pas à me contacter pour plus d'informations ou pour organiser une visite.Catherine Hugues - agent commercial immobilier - 06.76.84.66.28 -R.S.A.C. 398 184 630 de Saint Brieuc Les informations sur les risques auxquels ce bien est exposé sont disponibles sur le site Géorisques https://www.georisques.gouv.fr ------ Located in the heart of the historic district of Saint Nicolas du Pélem, this large semi-detached house of 180 m2, with a slate roof, offers many possibilities. Ideal for a large family or as an investment for rental income. It consists of two homes combined into one, spread over three levels, with two attics, a cellar, and a small bike storage room. Ground floor: Kitchen - Living room - Dining room - WC - Hallway - Storage room - Boiler room First floor: Landing with two corridors - Four bedrooms, including a master suite with shower room, and one bedroom with walk-in closet/office Second floor: Corridor leading to two bedrooms - Bathroom - WC - Two attics Basement: Cellar Just a short walk away, an outbuilding completes this property, including an enclosed 500 m2 garden (building plot), with fruit trees. You will also find two garages/boxes and a glass-roofed annex. Full renovation required. Close to all amenities (schools, doctor, post office, shopping center, etc.) and less than an hour from the Breton beaches. This house is a great opportunity not to be missed. Do not hesitate to contact me for more information or to arrange a visit. Catherine Hugues Real estate sales agent 06.76.84.66.28 R.S.A.C. 398 184 630 Saint Brieuc Information on the potential risks this property may be exposed to is available on the Géorisques website: https://www.georisques.gouv.fr Cette annonce vous est proposée par Hugues Catherine - EI - NoRSAC: 398 184 630, Enregistré à Chambre de commerce et de l'industrie de Saint Brieuc
180 m²
494 €
35 m²
649 m²
8
6
1
1
2
1920
Sud
Oui
2
2
Oui
Consommations énergétiques
Logement économe
349
Logement énergivore (kWhEP/m2/an)
Émissions de gaz à effet de serre
Faible émission de GES
69
Forte émission de GES(kgeqCO2/m2/an)
Contact Catherine HUGUES
Contacter gratuitement à l'aide du formulaire ci-dessous.