Honoraires à la charge de l'acquéreur (Prix hors honoraires : 5000 euros).
En exclusivité, Immobilière CORDIER vous propose une grange à rénover entièrement (viabilisations à réaliser), située sur la commune de Gras, Sainte Barbe (57) proche de Metz.
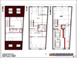
Un projet a été établi (cf photos 2 et 3) via un architecte et deux devis vous seront proposés : - un devis d'une maison prête à être décorée : excluant peinture, sols, sanitaires et cuisine - un devis clé en main (cuisine incluse)
Le bien offre : - une surface au sol d'environ 100 mètres carré (5*20) - sur l'avant une allée de 60 mètres carré - sur l'arrière un jardin privatif orienté Sud-Est d'environ 80 mètres carré.
Le projet pensé et proposé par nos soins vous offrira une maison sur 3 niveaux, composée de 3 chambres, d'un double garage au RDC (sur l'avant) ainsi qu'un séjour sur l'arrière, côté jardin, avec mezzanine et puit de lumière.
Honoraires inclus de 1200% TTC à la charge de l'acquéreur. Prix hors honoraires 5 000 . DPE en cours. Les informations sur les risques auxquels ce bien est exposé sont disponibles sur le site Géorisques : georisques.gouv.fr.
100 m²
650 €
269 m²
1
1200 %
Sud
Est
Oui
Contact CORDIER by Wëllkhome
Contacter gratuitement à l'aide du formulaire ci-dessous.